經驗豐富
案例簡介:對于空間氣質的表達是一門藝術,一個優秀的設計師往往能夠借助簡單的色彩組合來營造不同的氛圍感,再借助一些合理的裝飾點綴,打造出一所帶有獨特氣息的家居空間。本案例的設計師借助簡約的灰白配色來營造空間的個性與氣質,同時借助不同材料的質感裝飾空間,讓整個家居空間呈現簡約而又不簡單的視覺效果。
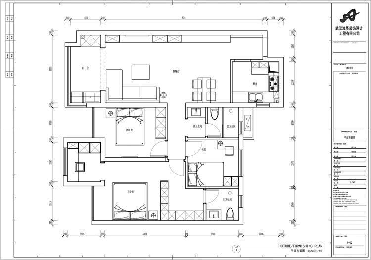
戶型解析:

金科城這套126㎡的三居室住宅雖然面積相對較大,且南北通透、采光好,但是由于原有的空間結構劃分并不夠合理,存在著一些細節不足,因此需要設計師合理的化解空間劣勢。為了降低大面積客廳帶來的空曠感,設計師將陽臺區域向內進行擴大,并改造成一個大的休憩、觀賞區域。同時將客廳內部區域借助軟隔斷改造成就餐區域,滿足使用需求的同時降低客廳過大帶來的單調氛圍。
客廳:


大面積的白色背景墻搭配上嵌入式的電視柜設計,整體給人簡約清新而又前衛的獨特氣息。
臥室:



做舊處理的灰色背景墻個性感十足,柔軟的灰色地毯,整體給人以不加修飾的天然清新美感。
案例簡介:本案例的業主對于生活品質有著比較高的追求,因此希望所打造出來的別墅空間能夠具有高級的品質感。業主提出,自己不喜歡各種華麗造型打造的別墅空間,這不僅僅容易造成視覺壓迫感,整個還給人張揚感。因此,設計師為業主選擇了現代輕奢風進行軟裝,整體呈現高級品質感而又不顯得刻意且張揚,在無形中展示主人的高雅品味。
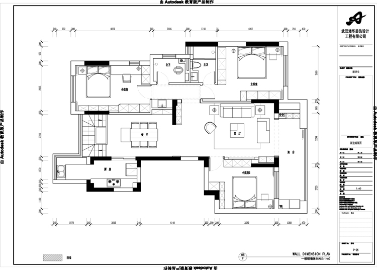
戶型解析:

軍運村這套300㎡的復式別墅空間十分寬敞,且南北通透,帶有南向大陽臺,整體戶型優勢較為明顯。因此設計師在進行規劃設計的時候,充分利用了空間的優勢,借助各種大面積窗戶的設計,提升室內采光。為了擴大陽臺空間,提升家居品質,設計師將客廳的陽臺與臥室陽臺直接打通,將整個陽臺空間改造成視角極佳的觀賞區,便于業主與家人觀賞室外美景。
客廳:


客廳區域借助莫蘭迪色系進行裝飾,強調一種朦朧的優雅氛圍。
廚房:

簡約的黑白配色耐看又經典,大理石瓷磚鋪設的地板則在無形中提升空間檔次感。
臥室:




不同深度的藍色組合讓臥室區域的結構感更加明顯,閱讀外面與衣柜的銜接處理則讓空間融合感更加強烈。
案例簡介:對于空間氣質的表達是一門藝術,本案例的餐廳呈現暗色系的現代感官,這里沒有喋喋不休 寧靜有增長心靈的力量,似乎能讓人感知優雅的存在。整個家居空間則以原木色與白色為主體,拾取飽和度較低的灰黑色系點綴,讓整個空間在舒適簡單中隱隱散發高級的質感。
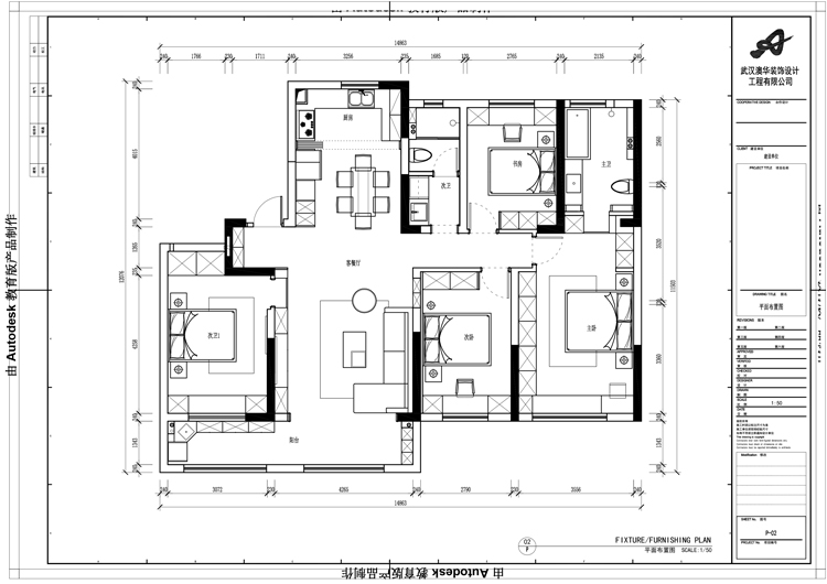
戶型解析:

藕色墻面搭配上細線條處理,給人精致的優雅感。弧線形的沙發搭配上圓形茶幾,營造柔和的自然舒適感。
客廳:


由灰色與藕粉色打造的餐椅給人簡約又柔和的視覺效果,搭配上白色背景墻,營造清新自然美感。
餐廳:

由灰色與藕粉色打造的餐椅給人簡約又柔和的視覺效果,搭配上白色背景墻,營造清新自然美感。
臥室:

通過不同深度色彩打造的背景墻結構感十足,同時在色彩較濃的背景墻區域設置梳妝臺,起到視覺分隔作用。
知精準報價 避裝修深坑
選擇您喜歡的風格
現代輕奢
現代美式
北歐
新中式
歐式
其他
知精準報價 避裝修深坑
選擇房屋面積區間
您的戶型
兩居室
三居室
四居室
五居室
六居室
知精準報價 避裝修深坑
稍等片刻,您的報價正在生中......
知精準報價 避裝修深坑
每日僅限前10名用戶