案例簡介:
該房屋裝修主要將重點放在了房屋的使用性能及裝飾上,因此設計師在進行裝飾設計的時候優先業主的起居使用需求與整體裝飾效果,利用緊湊的空間劃分來滿足業主一家三口的起居使用需求。而在裝修風格上,則尊重業主的喜好選擇了典雅的歐式風,同時利用各種帶有歐式風情的小元素進行空間裝飾點綴,以從細節上提升整個房屋空間的裝飾美感度。
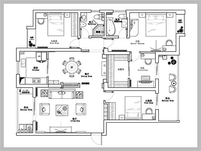
戶型分析:

這套同馨花園三居室住宅面積約為120㎡,雖然房屋空間面積比較大,但是由于所選用的是歐式風格裝修空間,對于空間的寬敞度有著較高的要求,因此設計師在對房屋進行裝飾設計的時候,擴大了空間的整體采光,讓空間從視覺上看起來更加寬敞大氣,能夠更好呈現歐式風的華貴氣息。而衣帽間則與書房設計在同一個空間中,采用了隔而未隔的軟隔斷設計,有效的提升的整體空間的使用率。
客廳1:

客廳區域選用的是經典的歐式配色,即暖黃色與白色的搭配,通過暖黃色來強調空間的富麗堂皇感。而帶有暗紋處理的大理石背景墻搭配上造型華麗的復古吊燈,則讓增添了整個空間的歐式風情美。
客廳2:

客廳區域的走廊處利用凹陷吊頂設計搭配暖黃色的圓形燈具營造一種簡約而又不失典雅的華貴美,走廊鏡頭則使用深黃色暗紋的墻紙進行裝飾,搭配以清新油畫,讓空間區域更顯明快清新。
知精準報價 避裝修深坑
選擇您喜歡的風格
現代輕奢
現代美式
北歐
新中式
歐式
其他
知精準報價 避裝修深坑
選擇房屋面積區間
您的戶型
兩居室
三居室
四居室
五居室
六居室
知精準報價 避裝修深坑
稍等片刻,您的報價正在生中......
知精準報價 避裝修深坑
每日僅限前10名用戶