案例解析:
喧囂的城市,如何構建一所心靈棲息所成為了大多數人所思考追求的,而對于退休老人而言更是如此。退休老人多追求簡約、舒適而又帶有沉穩韻味的空間,因此設計師在進行房屋設計時優先從老年人的審美及需求角度出發,細節處追求人性化元素,以讓房屋能夠更好的為居住者服務。
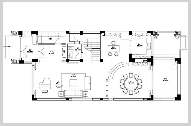
戶型分析:



這是一所坐落在夢湖香郡的267平方米復式大別院,空間戶型方正、南北通透且采光好,因此設計師在進行設計的時候將空間戶型優勢發揮到極致,利用大面積的落地窗設計讓室內空間看起來更加明亮潔凈。為滿足業主的審美需求,空間整體使用了較多深色元素,以營造一種沉穩氛圍,再搭配以歐式風情元素,強調典雅復古魅力。
客廳:

會客區域的設計相對比較簡約,通過簡約的色彩搭配來營造一種潔凈溫馨的氛圍。而該空間最大的設計亮點是將隔斷墻直接設計為電視背景墻,一墻兩用,有效提升了空間利用率。
餐廳:

由于房屋大多數情況下是由退休老人一個人居住,因此沒有在就餐區域使用較多的面積,而是在滿足使用需求的前提下追求一種沉穩大氣感,借助酒柜、大理石餐桌來營造一種渾厚大氣的貴族氣息。
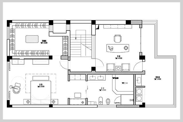
臥室:


為了提升睡眠質量,臥室使用了相對較多深色色彩進行裝飾,深褐色的地毯、黑色的墻面,很好的營造了一種夜幕降臨的寧靜氛圍感。而白色的吊頂設計,則讓空間多一份清新韻味。
書房:

業主是一個喜歡閱讀的人士,因此設計師在進行空間規劃設計的時候特意預留出一個空間作為書房,同時借助書柜墻裝飾點綴空間,在滿足業主使用需求的前提下營造一種高雅氣息。
衛生間:

衛生間區域使用了相對比較不起眼的玻璃門隔斷,以避免空間顯得壓抑。而帶有藝術畫的墻面設計搭配上設計感十足的小浴缸,一種雍容華貴之感呼之欲出。
知精準報價 避裝修深坑
選擇您喜歡的風格
現代輕奢
現代美式
北歐
新中式
歐式
其他
知精準報價 避裝修深坑
選擇房屋面積區間
您的戶型
兩居室
三居室
四居室
五居室
六居室
知精準報價 避裝修深坑
稍等片刻,您的報價正在生中......
知精準報價 避裝修深坑
每日僅限前10名用戶