案例簡介:本案例主人公作為高階級白領,向往美好而又精致的城市生活,對于房屋的裝修也有著更有品味的追求。設計師結合業主的品味、工作以及生活習慣,選擇了相對比較儒雅舒適的簡中式風進行軟裝,通過引入各類復古清新的古韻元素強調空間的清新自然之美,讓業主能夠在結束一天忙碌生活之后,盡情享受高雅舒適的休憩生活。
戶型解析:


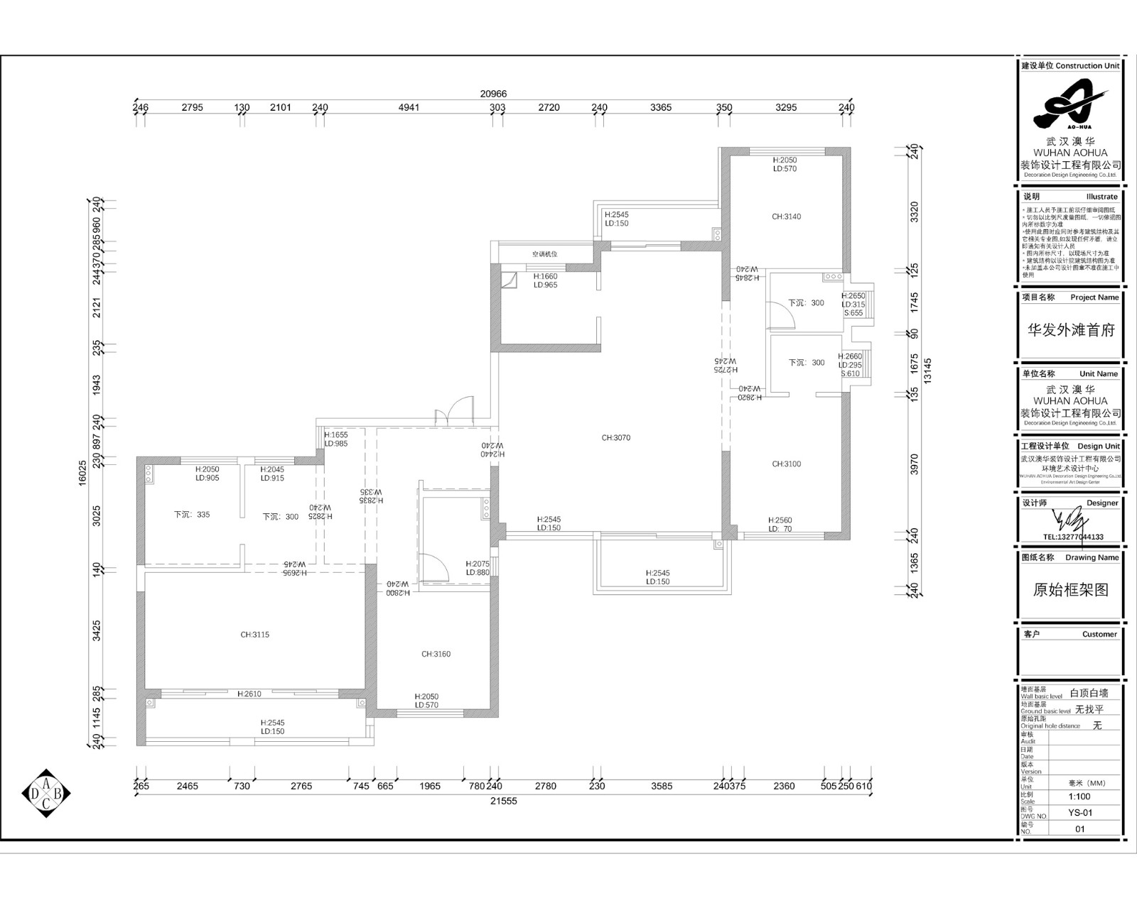
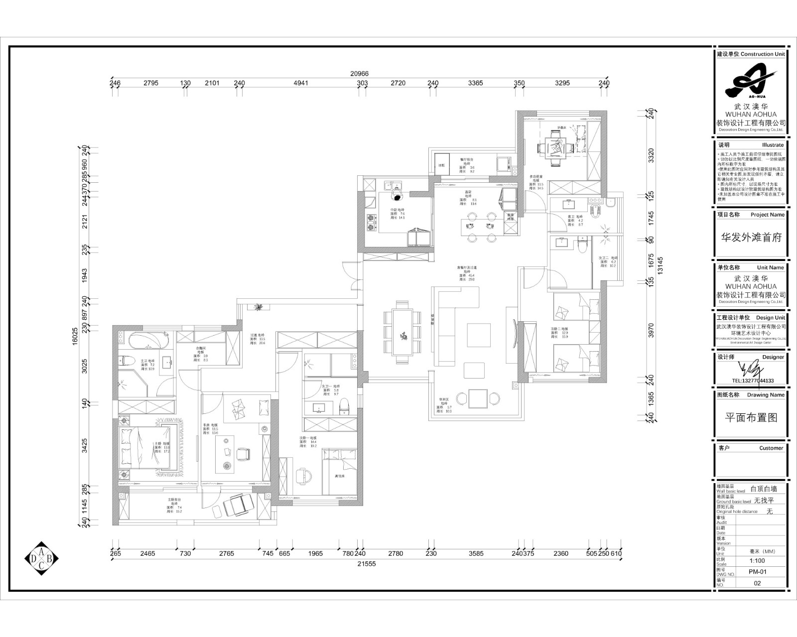
華發外灘首府這套五居室的住宅面積約為241㎡,整體戶型結構相對比較少見,簡單的一面墻體將兩個相對比較獨立的大空間連接在一起,而本次的設計難點就在于如何將這兩個相對獨立的大空間進行合理的規劃設計,避免空間出現違法感與割裂感。設計師則直接將兩個獨立的大空間進行簡單的動靜分隔,將活動區域、會客區域與休憩空間借助戶型的天然隔斷進行分隔,有效提升室內私密性與格調感。
客廳:


客廳沙發背景墻采用靚麗的白色,提升空間亮度的同時奠定輕盈舒適氛圍感。
臥室:

臥室區域以清新的核桃木色作為主基調色,加以大理石材質背景墻,讓空間更顯靜謐高級格調。
衛生間:

衛生間區域被灰色暗紋瓷磚所包圍,搭配以玻璃透明隔斷們,給人精致優雅格調感。
知精準報價 避裝修深坑
選擇您喜歡的風格
現代輕奢
現代美式
北歐
新中式
歐式
其他
知精準報價 避裝修深坑
選擇房屋面積區間
您的戶型
兩居室
三居室
四居室
五居室
六居室
知精準報價 避裝修深坑
稍等片刻,您的報價正在生中......
知精準報價 避裝修深坑
每日僅限前10名用戶