案例介紹:業主是一對偏愛中式傳統文化的年輕人,因此在進行家裝的時候希望能夠融入一些中式元素,增加空間的復古典雅韻味。為了契合業主的審美,設計師選用了兼顧時尚氣息與傳統中式韻味美的新中式家裝風格,同時借助一些復古元素的搭配使用來營造一種雅而不俗的傳統韻味。
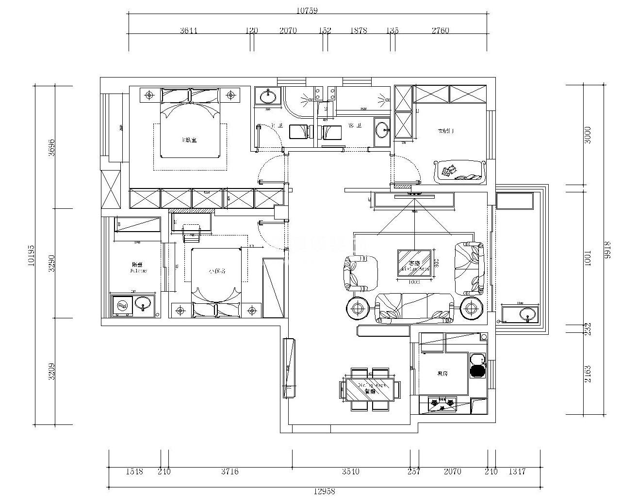
戶型解析

這座位于臥龍墨水湖邊的140㎡三居室住宅的結構相對比較方正規整,結構缺陷比較小,最大的空間問題在于客廳區域與就餐區域的面積不夠大,因此設計師在進行規劃設計的時候僅借助視覺的分隔來起到空間劃分的作用,以從視覺上起到放大整個家居空間的作用。而玄關處則是借用簡單的裝飾設計,來緩解空間面積不大所帶來的壓抑感。
玄關:

由于玄關處面積并不大,因此設計師在對該區域沒有做過多的裝飾設計,而是借助簡單的禪意掛畫及門框鑲邊設計進行裝飾,在強調空間精致度的同時不造成壓迫感。
客廳:

客廳區域使用了厚重感較強的深棕色電視柜,以強調中式風所特有的端莊大氣感。而白色系的沙發則讓空間的厚重感得到緩解,為空間增添了清新韻味。
| 姓名* | |
| 樓盤* | |
| 電話* | |
知精準報價 避裝修深坑
選擇您喜歡的風格
現代輕奢
現代美式
北歐
新中式
歐式
其他
知精準報價 避裝修深坑
選擇房屋面積區間
您的戶型
兩居室
三居室
四居室
五居室
六居室
知精準報價 避裝修深坑
稍等片刻,您的報價正在生中......
知精準報價 避裝修深坑
|
每日僅限前10名用戶