案例簡介:本案例的主人是一個二十多歲的年輕女孩,年紀雖然不算大但是卻有著自己的堅持,而在家裝設計上她也有著自己的想法與設計思路,因此設計師在進行本案例設計的時候充分考慮了業主本人的喜好、需求,然后再根據這些進行延伸、拓展,以保障能夠打造出契合業主喜好的家居空間。
戶型解析:



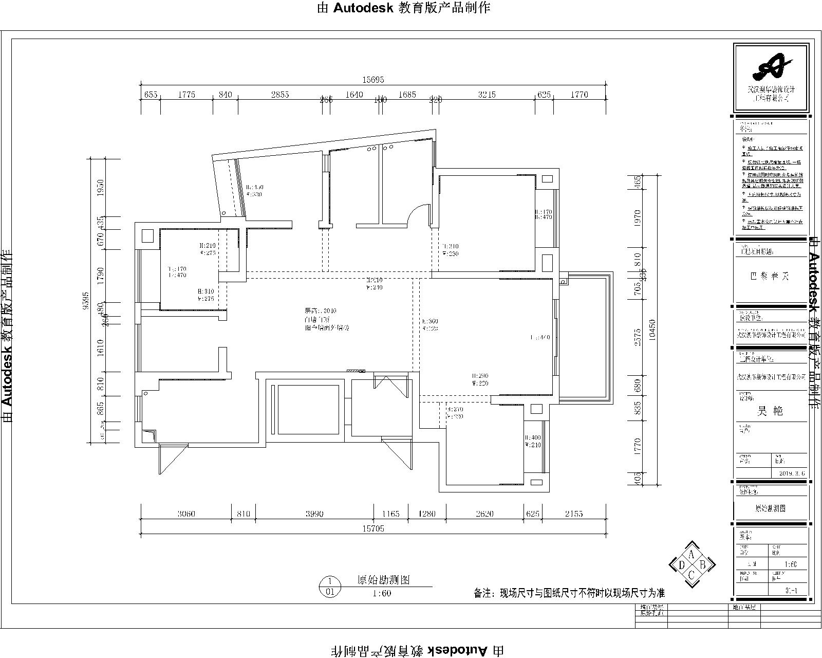
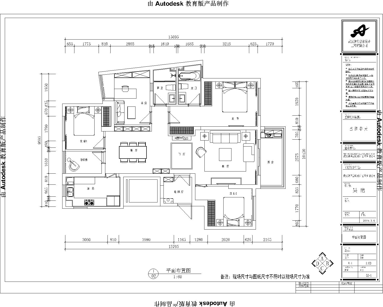
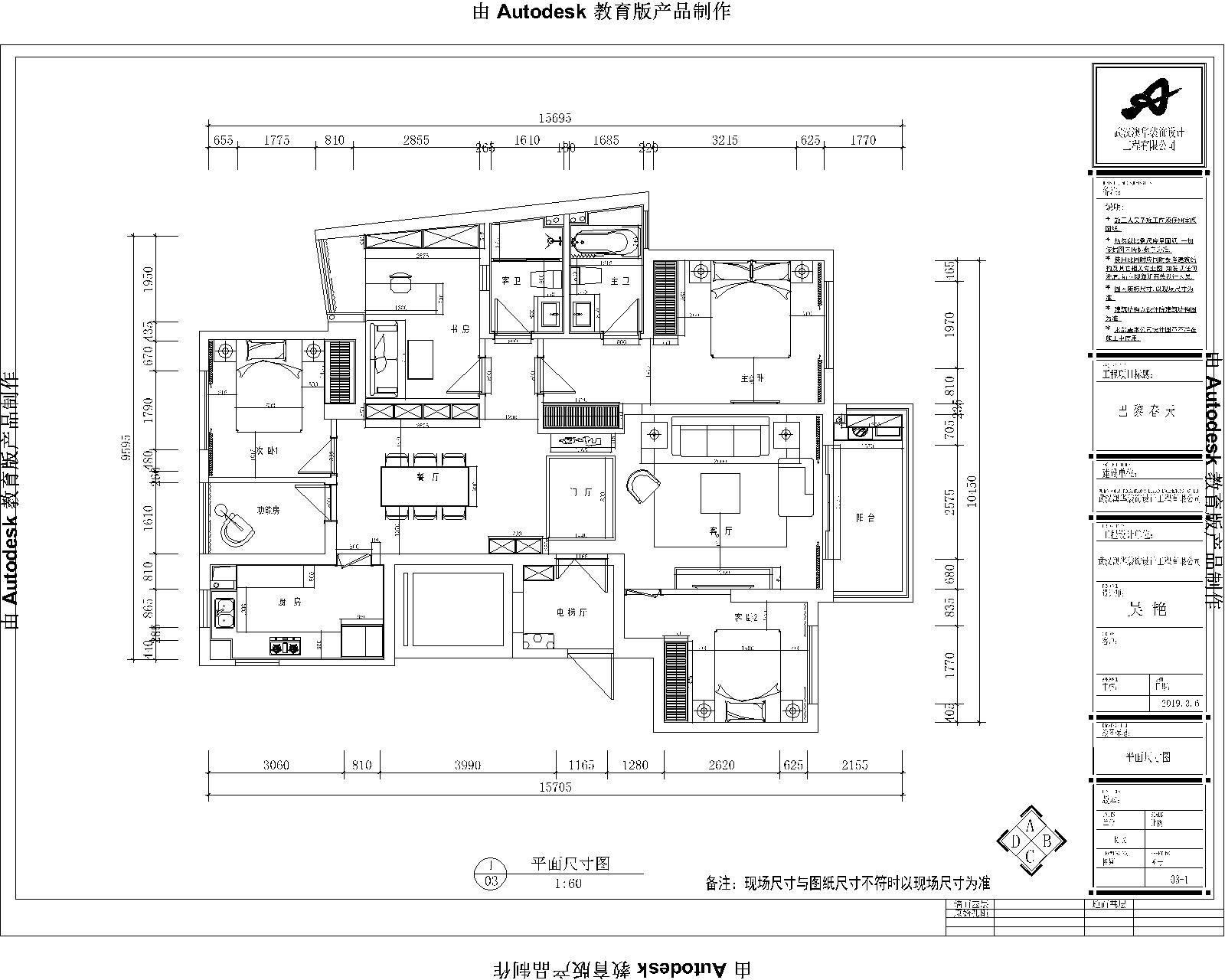
巴黎春天這套143㎡的住宅戶型最大的問題就在于不夠平整,而戶型 不平整所帶來的犄角角落如果不進行合理的規劃設計,那么整個空間不僅會缺乏美觀度,還會造成空間的浪費。而設計師則利用戶型的結構特點,順著犄角空間放置置物臺、浴缸,在無形之中化解了犄角困擾。而其他區域則按照業主的需求進行了一定的再劃分,以滿足日常起居使用。
客廳:

客廳選用了大量歐式元素,如華麗的吊燈、歐式造型家具、復古臺燈等等,這些元素讓整個會客區域看起來更加的華麗精致。
餐廳:

帶有暗紋處理的壁紙搭配上菱形紋理地板,奠定了精致的格調氛圍。而桌椅、吊燈等細節設計,則為空間增添藝術時尚氣息。
書房:

極具藝術氛圍的吊燈搭配上復古的淺色臺燈,將時尚的氣息與歐式復古風情完美交織在一起。
臥室:


臥室沿用了與整個房屋一致的元素,通過各類線條的走向、家具的造型處理營造一種典雅高貴的大氣美。
| 姓名* | |
| 樓盤* | |
| 電話* | |
知精準報價 避裝修深坑
選擇您喜歡的風格
現代輕奢
現代美式
北歐
新中式
歐式
其他
知精準報價 避裝修深坑
選擇房屋面積區間
您的戶型
兩居室
三居室
四居室
五居室
六居室
知精準報價 避裝修深坑
稍等片刻,您的報價正在生中......
知精準報價 避裝修深坑
|
每日僅限前10名用戶