案例解析:本案例的主人公剛剛退休,相比于各種時尚元素而言,她更加偏愛傳統而又韻味感十足的中式元素。因此設計師在裝修風格的挑選上選擇了傳統的中式風,同時融入一些現代化元素,這樣能夠在強調室內空間復古韻味的同時,還能夠較好的滿足現代人的起居使用需求。而空間劃分上,設計師則在考慮業主家人使用需求的前提下進行了再規劃,以保障能夠滿足不同家庭成員的使用需求。
戶型解析:


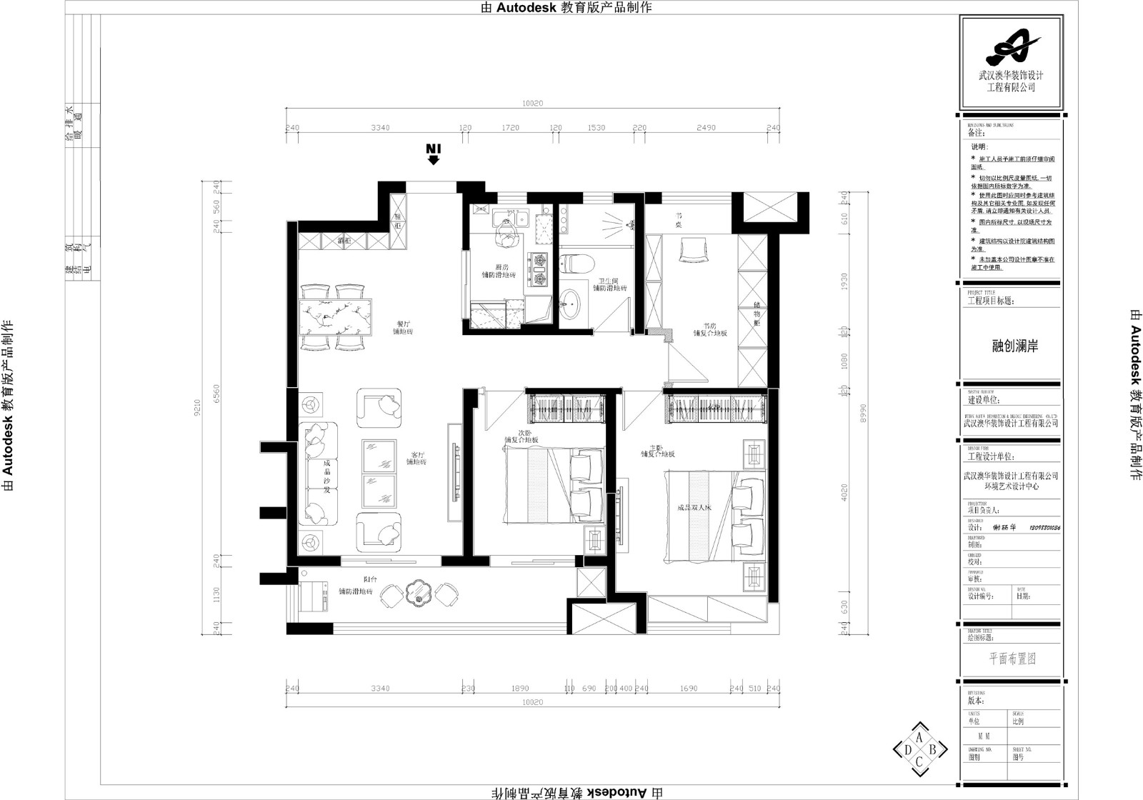
融創瀾岸的這套105㎡的三居室主宰整體的戶型結構相對比較平整,幾乎沒有太大的格局缺陷,因此空間設計難度不大。為了提升空間的實密度與美觀度,設計師將玄關處設置了一定的遮擋,避免室內景象直接映入來者眼前。同時,利用大面積落地窗設計,將室外的好風光進入室內,起到較好的室內裝飾點綴效果。
客廳:



大理石打造的電視背景墻清新而又不失高貴感,搭配上對稱式木質結構,平添一抹溫厚柔和之美。
餐廳:


就餐區域被設置在入門玄關的拐角處,有效避免了角落空間的浪費。同時借助一個木質儲物柜起到視覺隔斷的作用。
廚房:

L形的設計保障了廚房空間的合理利用,有有效避免出現轉身困難的情況。深棕色木質儲物柜與白色大理石臺面的碰撞,則讓空間層次感更為豐富。
臥室:


大面積藍色碎花壁紙搭配上木質地板,簡約清新而又耐看。
衛生間:

大面積的淺色瓷磚從視覺上起到放大空間作用,玻璃滑門則讓空間的不同功能區域得到更為明顯的劃分。
| 姓名* | |
| 樓盤* | |
| 電話* | |
知精準報價 避裝修深坑
選擇您喜歡的風格
現代輕奢
現代美式
北歐
新中式
歐式
其他
知精準報價 避裝修深坑
選擇房屋面積區間
您的戶型
兩居室
三居室
四居室
五居室
六居室
知精準報價 避裝修深坑
稍等片刻,您的報價正在生中......
知精準報價 避裝修深坑
|
每日僅限前10名用戶