案例簡介:對于追求特立獨行的年輕業主們來說,他們對于家往往有著自己的理解,也因此設計師們在為年輕業主設計房屋時需要更深入的了解他們的喜好與需求。而本案例的業主既喜歡現代的時尚元素,又對工業復古元素有著濃烈的興趣,因此設計師選用了將現代風與工業風進行混搭,將各種時尚元素搭配以做舊元素,呈現出一個個性化十足的家居空間,以迎合業主的審美與個人追求。
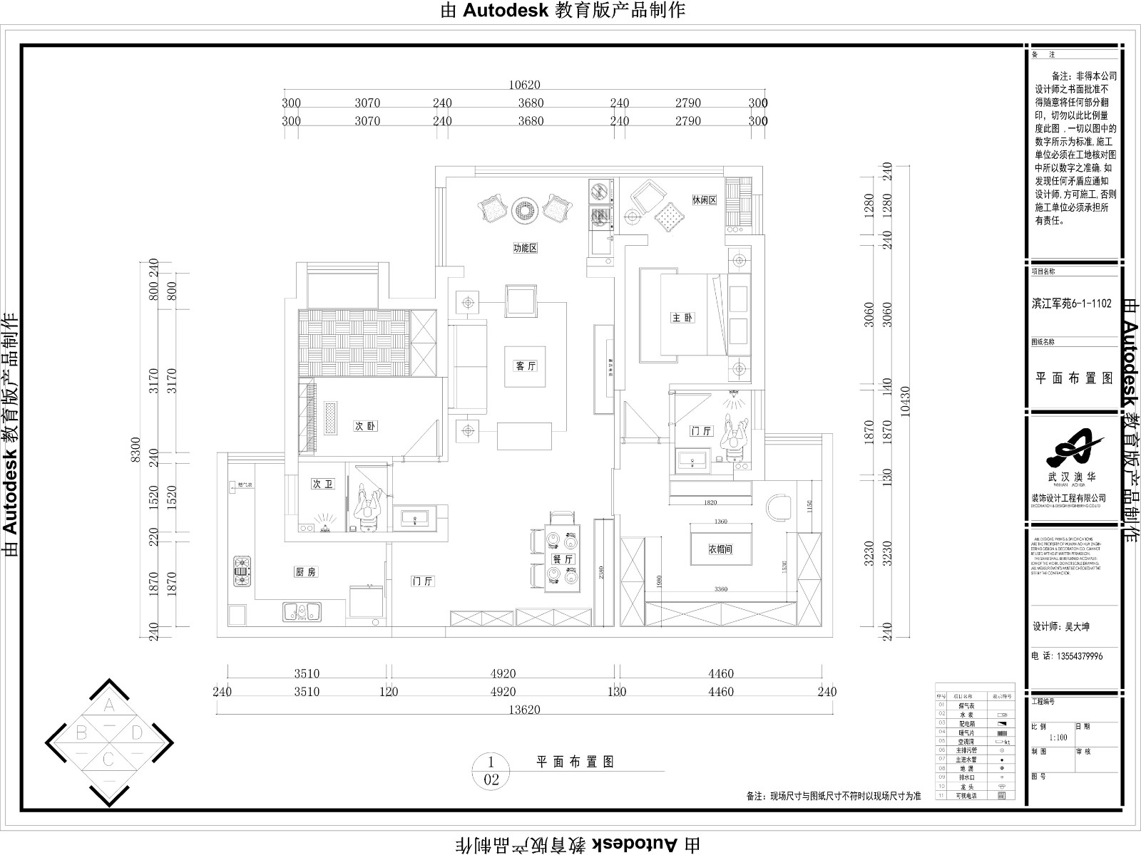
戶型解析:


濱江軍苑這套三居室房屋面積約為130㎡,屬于大戶型房屋,整體戶型結構較為平整且南北通透,因此設計師在進行規劃設計的時候充分的利用了戶型結構的優勢,將室外光線引入室內,有效提升了整個家居空間的采光度。而由于客廳區域相對比較狹長,因此被劃分出一塊區域改造為就餐區域,以讓空間格局的視覺效果更加協調。
客廳:



為區分就餐區域與會客區域,同時滿足業主的需求,設計師在會客區域選用了大量的fugue工業元素,如燈飾、背景墻,通過做舊的出來來營造一種個性家居感。
餐廳:



餐廳區域使用了大量的復古綠色作為主基調色,強調了一種復古工業的朋克氣息。
廚房:



廚房區域選用了以就餐區域一致的綠色儲物柜,保障空間整體的銜接感。
臥室


為滿足業主審美,突出空間個性化,臥室區域選用了大面積的黑色作為背景墻設計,此外沒有任何軟裝點綴,簡約高級而又充滿濃烈的個人色彩。
衛生間:


衛生間區域則使用了簡約的黑白配色,耐看且易于打理。而帶有印花的門簾則起到一定干濕分離的作用。
知精準報價 避裝修深坑
選擇您喜歡的風格
現代輕奢
現代美式
北歐
新中式
歐式
其他
知精準報價 避裝修深坑
選擇房屋面積區間
您的戶型
兩居室
三居室
四居室
五居室
六居室
知精準報價 避裝修深坑
稍等片刻,您的報價正在生中......
知精準報價 避裝修深坑
每日僅限前10名用戶