案例簡介:一個好的家裝設計能夠讓人徹底放松身心,更好享受閑暇時光的美好。而本案例的業主喜歡簡單的元素,不喜歡各種花里胡哨的造型設計,因此希望設計師能夠根據自己的審美打造出一個簡約而又不簡單的品質住宅。根據業主的需求,設計師選擇了簡約風進行室內裝飾,同時利用高檔材料本身的質感來提升室內環境的品質。
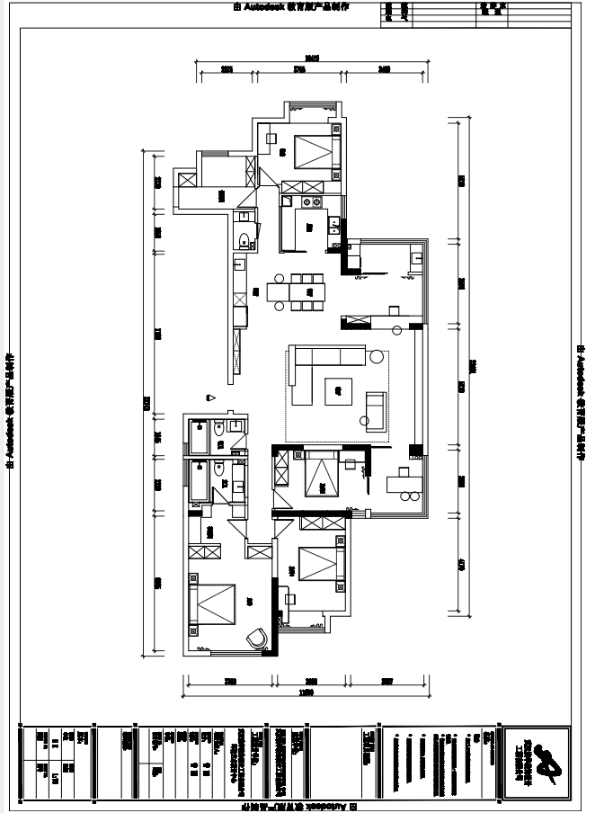
戶型解析:


水岸星城這套四居室的占地面積約為230㎡,整體戶型偏狹長形,這也就導致了部分過道走廊區域的面積相對比較擁擠,因此需要設計師做好各功能銜接處的細節處理,提升空間品質感。同時,借助各類軟隔斷提升室內空間界限感的同時有效避免環境給人壓抑感。而色彩的選擇上,則大面積使用了素雅清新的色系,強調溫馨柔和美。
客廳:


木質軟隔斷清新又溫暖,搭配上大理石背景墻,強調空間質感。
餐廳:


鏤空嵌入式雙開門大冰箱既可以滿足日常使用需求,又避免了空間浪費。
主臥:

大面積落地窗提升休憩空間采光,木質材料與白色水泥墻的組合搭配,則強調清新自然柔和美。
次臥:

次臥使用灰色作為主基調色,強調柔和的沉穩氣息,同時借助各類型線條的搭配強調空間結構美。
知精準報價 避裝修深坑
選擇您喜歡的風格
現代輕奢
現代美式
北歐
新中式
歐式
其他
知精準報價 避裝修深坑
選擇房屋面積區間
您的戶型
兩居室
三居室
四居室
五居室
六居室
知精準報價 避裝修深坑
稍等片刻,您的報價正在生中......
知精準報價 避裝修深坑
每日僅限前10名用戶