案例簡介:本案例的主人公崇尚簡約而又輕奢的現代格調生活,因此設計師對這套房屋進行規劃設計的時候盡可能的選擇了一些相對比較有質感而又不繁瑣的元素,以營造一種簡約而又不簡單的輕奢高級感。色彩的選擇上則是以簡約潔凈的淺色系色彩為主,點綴以少量亮色系色彩,以強調柔和溫馨家居氛圍。
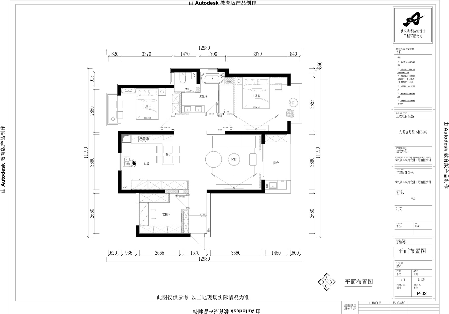
戶型解析:

九龍倉月璽的這套三居室房屋的建筑面積約為128㎡,整體原有戶型結構即可滿足業主使用需求,因此不再進行重新規劃。為滿足女主人的衣物規劃、替換需求,設計師將其中一個小房間打造成衣帽間,再搭配以清新裝飾點綴,有效提升品質。整個家居空間的用色相對比較節儉素雅,滿足業主審美需求。
客廳:

會客區選用了黑色木質桌子與橘色布藝沙發,通過色彩的碰撞表達一種個性美、清新感十足的淺色掛畫,則提升了空間的優雅氛圍。
廚房:

設計師巧妙借助L形造型的櫥柜進行空間軟隔斷,將整個廚房空間通過櫥柜拐角變化進行分割,有效提升了空間的功能分界感。
臥室:

臥室區域通過不同濃度的藍色進行軟裝,淺藍色墻面搭配上深藍色床具,簡約耐看而又不失整體協調美。
衛生間:

淺色墻面搭配上懸空臺面設計就構成了整個衛生間,而鏡子則選用了沒有經過任何裝飾處理的原型裸鏡,簡約而又帶有個性藝術感。
陽臺:

陽臺側面小角落安裝置物柜,同時嵌入洗衣機,有效提升空間利用率。
| 姓名* | |
| 樓盤* | |
| 電話* | |
知精準報價 避裝修深坑
選擇您喜歡的風格
現代輕奢
現代美式
北歐
新中式
歐式
其他
知精準報價 避裝修深坑
選擇房屋面積區間
您的戶型
兩居室
三居室
四居室
五居室
六居室
知精準報價 避裝修深坑
稍等片刻,您的報價正在生中......
知精準報價 避裝修深坑
|
每日僅限前10名用戶