案例簡介:本案例的業主是一個三口之家,有一個六歲的寶寶,而父母也偶爾會過來聚一聚,因此業主們對于空間的設計要求是將空間進行再規劃,滿足多位家庭成員的居住需求。同時希望房屋動線設計合理,并設計出足夠的親子互動空間,以保障孩子能夠健康快樂的成長。基于此,設計師對空間進行了重新劃分,同時融入清新明快的元素,強調空間童真氛圍。
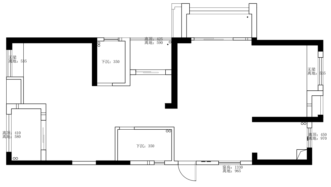
戶型解析:


頂琇國際城這套129㎡的四居室住宅原有的戶型結構相對比較簡單,并沒有進行一定的功能區域劃分,因此設計師需要根據業主的使用需求對空間進行規劃設計,同時再加以軟裝設計,來提升家居空間的品質感。為了滿足業主的辦公、閱讀需求及孩子的學習需求,空間中特意打造出一塊書房區域,同時借助大面積的開窗設計來提升環境舒適度。
客廳:



淡藍色的墻面搭配上淺色暗紋的沙發,低調中又帶有一抹淡淡的清新氣息。木質桌子則與不易沙發之間形成碰撞,提升了空間的立體感與質感。
餐廳:


餐廳區域位于客廳區域的延伸處,僅以簡單的木質桌椅構成,強調實用性。
臥室:


素色條紋壁紙搭配上淺藍色田園風窗簾,清新典雅而又不失自然浪漫風情。
知精準報價 避裝修深坑
選擇您喜歡的風格
現代輕奢
現代美式
北歐
新中式
歐式
其他
知精準報價 避裝修深坑
選擇房屋面積區間
您的戶型
兩居室
三居室
四居室
五居室
六居室
知精準報價 避裝修深坑
稍等片刻,您的報價正在生中......
知精準報價 避裝修深坑
每日僅限前10名用戶