案例簡介:本裝修案例為現代意式極簡風格,設計以業主的品味、審美以及生活習慣為考慮依據,空間整體以素色系色彩為主基調色,把一些復雜的元素都去除,保留必要元素加以少量裝飾,打破繁瑣而又不實用的設計,幫助業主享受生活本質。各類線條的穿插使用,則為空間的結構感、層次感增添了一抹時尚氛圍。
戶型解析:


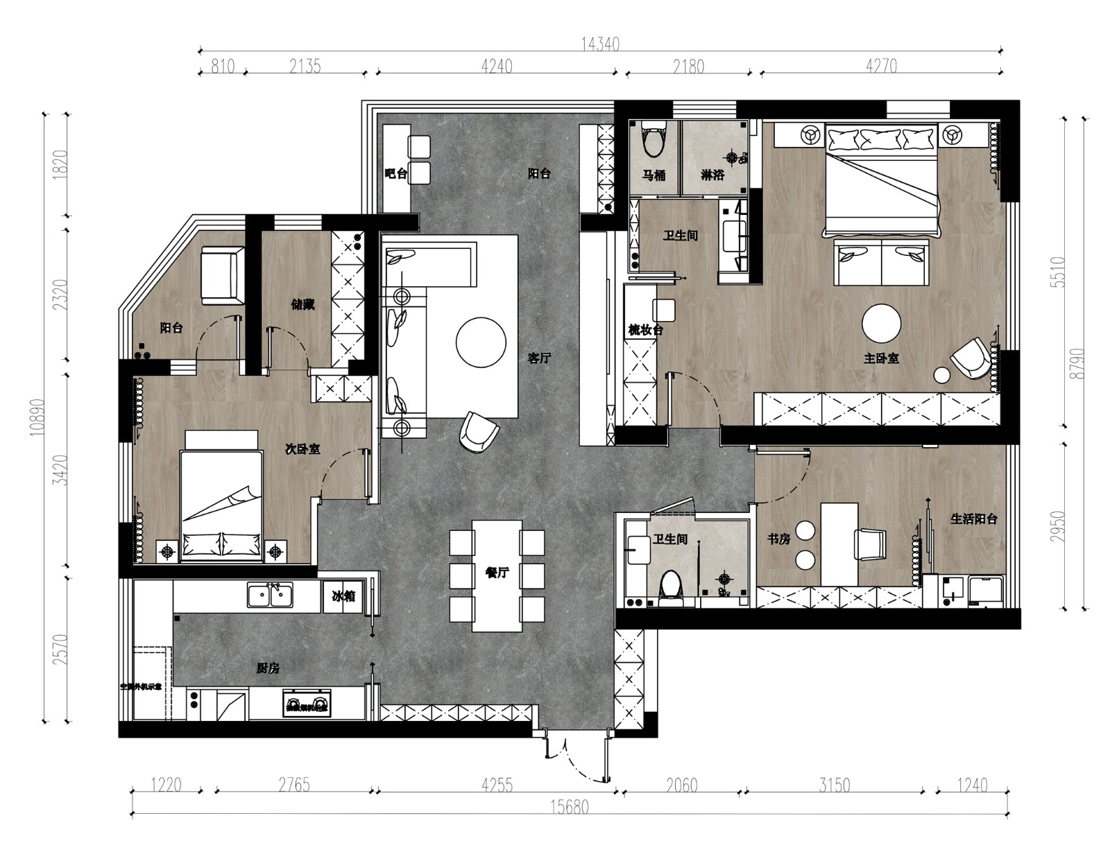
西斯萊公館的這套房屋面積約為200㎡,空間戶型上存在著一個斜坡角度,該斜坡導致整個家居空間中出現一個三角形角落,如何對這塊區域進行合理的規劃設計,在滿足使用需求的前提下不會顯得違和是本次設計難點。而設計師將該快區域直接融入臥室區域,然后借助斜坡打造一個藝術感陽臺,提升臥室區域通風透氣效果的同時,有效化解了空間犄角帶來的局限性。
客廳:


客廳區域借助線條的搭配與組合來形成裝飾,背景墻處的幾何切割、曲線型的沙發等,為整個空間整潔而又不失藝術感。
餐廳:

為保障空間整體的銜接感,就餐區域選用了與會客區域一致的配色與桌椅,通過座椅的體量與擺放進行空間區分。
臥室:


相比于其他功能空間,臥室區域使用了較多的木質材料,通過木材本身的溫潤質感提升空間溫馨舒適氛圍。
衛生間:

大理石材質清冷而又高級,搭配上大面積簡約方形鏡子,大氣耐看而又實用。
| 姓名* | |
| 樓盤* | |
| 電話* | |
知精準報價 避裝修深坑
選擇您喜歡的風格
現代輕奢
現代美式
北歐
新中式
歐式
其他
知精準報價 避裝修深坑
選擇房屋面積區間
您的戶型
兩居室
三居室
四居室
五居室
六居室
知精準報價 避裝修深坑
稍等片刻,您的報價正在生中......
知精準報價 避裝修深坑
|
每日僅限前10名用戶