案例簡介:本案例的房屋常住人口只有業主夫妻而言,有時候父母、朋友會過來小聚,因此業主提出需要預留出足夠的會客區域與客人休憩空間。而在與業主進行深入了解后,設計師發現業主二人追求的是一種簡單自由的生活,因此設計師選擇了以浪漫著稱的美式風裝飾空間,同時分隔出一定的次臥供客人休憩。
戶型解析:




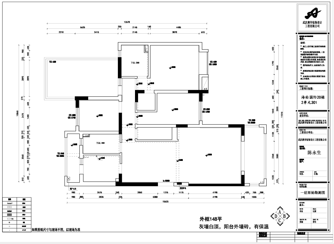
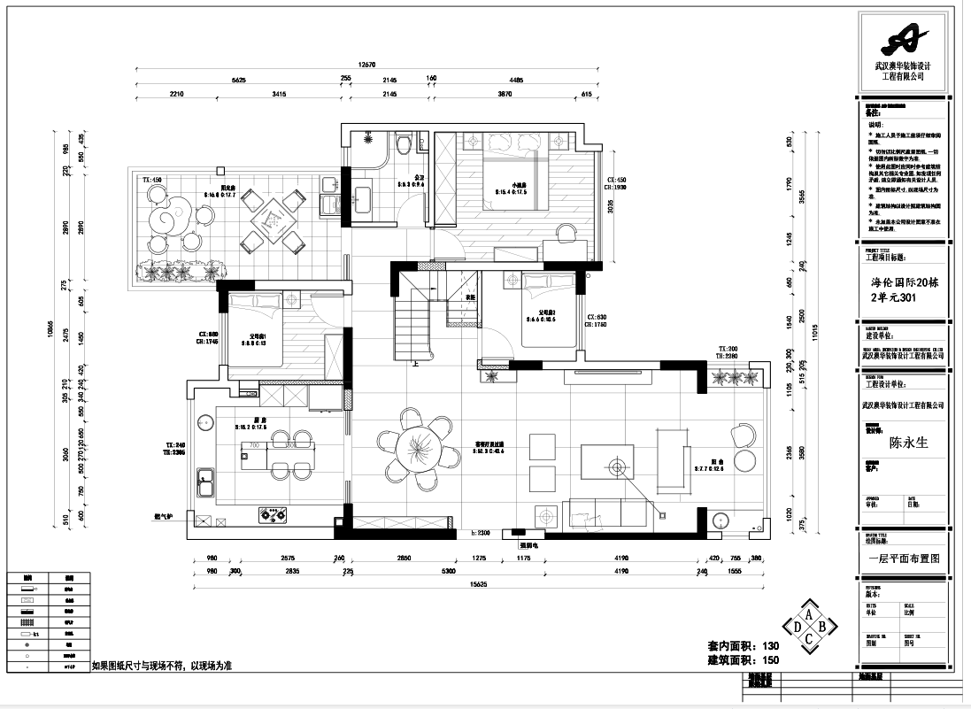
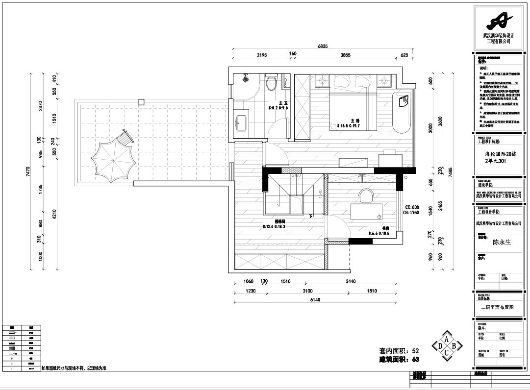
這套海倫國際的180㎡復式住宅的戶型戶型結構四方平整,且位于頂樓帶有小露臺,因此設計師在進行規劃設計的時候充分利用頂樓優勢,加入各類落地窗設計,提升室內采光度。同時,將露臺打造出一個舒適的會客休閑區域,以提升空間的利用率。整體色彩則按照業主的審美選擇了淺色系色彩,避免造成視覺壓迫感。
客廳:



客廳選用沉穩的灰色作為主基調色,耐看不易過時且相對便于缺少。大理石材質的背景墻低調而又不失高級韻味。
廚房:

淺藍色的櫥柜搭配上白色吊頂,優雅清新,讓油煙之所充滿浪漫之美。
臥室:


淡綠色的床頭墻搭配上藕粉色的窗簾,讓空間自帶自然清新氣息。而大面積的落地窗則確保陽光能夠自由撒落在室內。
知精準報價 避裝修深坑
選擇您喜歡的風格
現代輕奢
現代美式
北歐
新中式
歐式
其他
知精準報價 避裝修深坑
選擇房屋面積區間
您的戶型
兩居室
三居室
四居室
五居室
六居室
知精準報價 避裝修深坑
稍等片刻,您的報價正在生中......
知精準報價 避裝修深坑
每日僅限前10名用戶