案例簡介:本案例的主人公追求高品質生活,希望能夠在結束忙碌工作之后盡情感受生活的美好,也因此在家裝設計上更追求舒適感與品質感。而由于平常過來一起閑聊的朋友比較多,因此業主還與設計師強調希望能夠將休憩空間與活動空間進行一定隔斷,以提升自己與家人生活的私密性。基于此,設計師為業主選擇了相對經典耐看而又高級的現代輕奢風,同時借助功能空間的合理劃分進行動靜分離,提升生活品質。
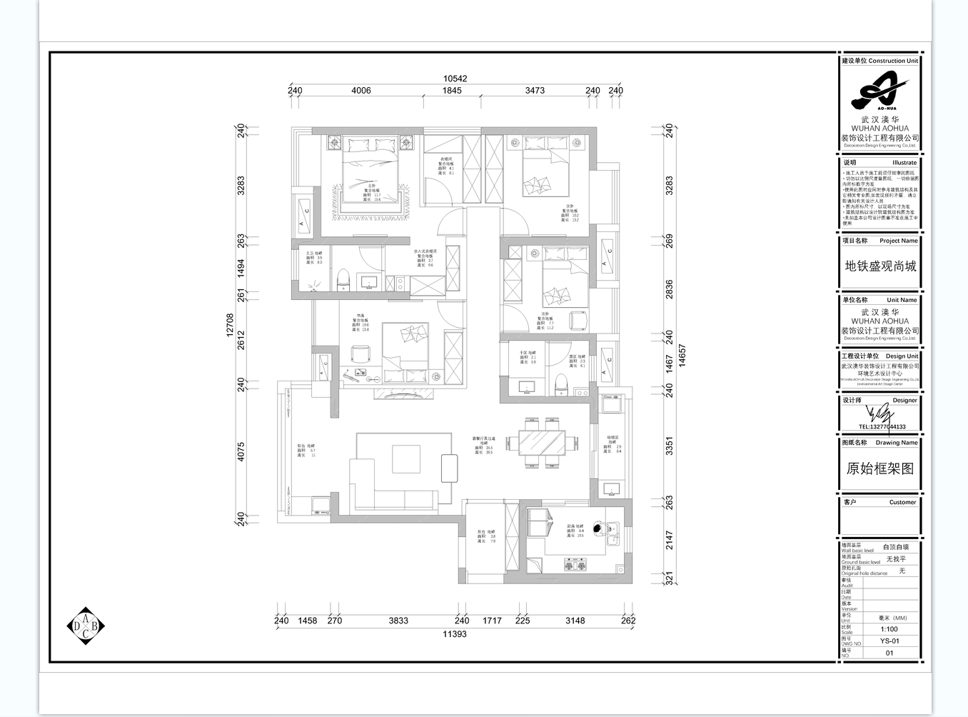
戶型解析:


盛觀尚城這套四居室的住宅面積約為150㎡,戶型結構方正且平整,無需進行結構戶型的大改動。根據業主的想法與需求,設計師以入戶門為分界線,將內部區域打造為臥室、書房等休憩空間,而其于空間則打造為會客區域、做飯區域等相對比較熱鬧的功能空間,以提升業主及家人休憩的實密度。由于主臥面積較大,因此設計師將主臥空間進行再分割,通過軟隔斷打造出一個迷你的衣帽間,以避免休憩空間面積過大而帶來空蕩感。
客廳:


幾何掛畫簡約而又充滿現代藝術感,搭配上黑色茶幾,為空間增添摩登風情。
餐廳:

就餐區域被設計在客廳區域的延長處,有效提升空間利用率。鏤空深木色櫥柜簡約而又不失自然風情。
次臥:

淡藍色墻面點綴上簡約藝術掛畫,避免空間給人單調區域的視覺效果。
知精準報價 避裝修深坑
選擇您喜歡的風格
現代輕奢
現代美式
北歐
新中式
歐式
其他
知精準報價 避裝修深坑
選擇房屋面積區間
您的戶型
兩居室
三居室
四居室
五居室
六居室
知精準報價 避裝修深坑
稍等片刻,您的報價正在生中......
知精準報價 避裝修深坑
每日僅限前10名用戶