案例簡介:簡約到極致是一種不同的格調與浪漫,它能讓人更好的感受生活本真,也因此不少業主在進行家裝設計的時候都會提出不需要過多的造型設計,希望通過最簡潔的元素展示出空間該有的舒適感與格調感。本案例的設計師借助最經典簡約的色彩搭配、最為常見的元素進行組合,營造出一種簡約而不簡單的高級格調感。
戶型解析:

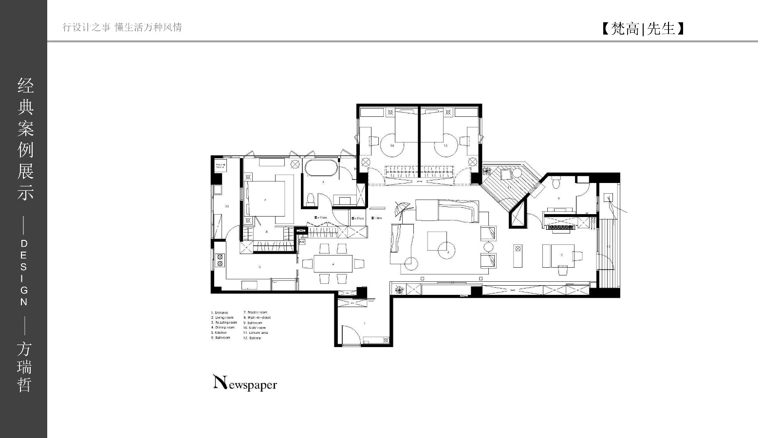
招商城這套145㎡的三居室住宅戶型結構中存在著較多的細小角落,且空間走廊處過于擁擠,因此需要設計師對空間進行再次規劃設計,化解空間劣勢。設計師按照空間的結構特點,將處于犄角區域的小空間打造成一個迷你的儲物間,同時借助素雅的設計降低該空間的存在感。走廊過道處則利用相對比較潔凈的元素進行裝飾,搭配以明亮燈具,從視覺上起到擴大走廊的作用。
客廳:



溫潤質感十足的木質地板搭配上簡約的白色嵌入式背景墻,整體給人干凈舒適的氣息。
臥室:


臥室區域沿用與其他功能區域一致的簡約白色,搭配上灰色背景墻,給人以沉穩柔和的獨特靜謐感。
衛浴空間:


簡約的白色營造自然潔凈感且易于打掃,玻璃推拉門設計則起到很好的干濕分離作用。
| 姓名* | |
| 樓盤* | |
| 電話* | |
知精準報價 避裝修深坑
選擇您喜歡的風格
現代輕奢
現代美式
北歐
新中式
歐式
其他
知精準報價 避裝修深坑
選擇房屋面積區間
您的戶型
兩居室
三居室
四居室
五居室
六居室
知精準報價 避裝修深坑
稍等片刻,您的報價正在生中......
知精準報價 避裝修深坑
|
每日僅限前10名用戶