案例簡介:其實對于絕大多數人而言,家不需要花里胡哨的設計,只需要能夠給人一種踏實的歸屬感就足夠了,也因此本案例的設計師在與業主進行溝通之后,舍棄了各種華麗的設計,借助最為常見的灰白配色營造一種溫馨舒適感,同時借助簡單的墻面設計,在不會顯得過于刻意的前提下裝飾點綴空間,強調一種簡約而又不簡單的高級潔凈美。
戶型解析:

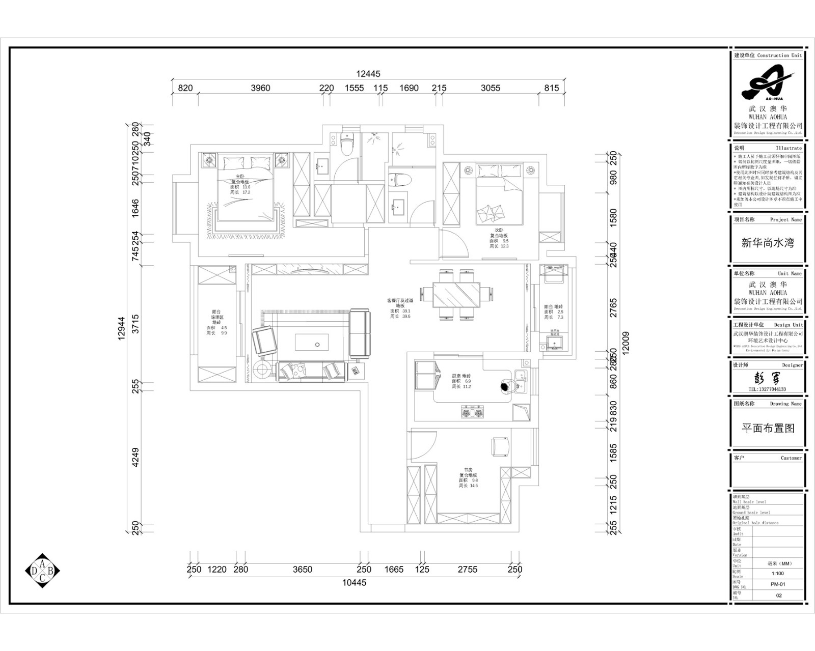
新華尚水灣這套137㎡的三居室住宅戶型規整且采光好,原有功能分區上的劣勢在于走廊過于狹長,容易給人以閉塞感。因此設計師充分利用戶型優勢,借助雙陽臺設計引進自然光,而走廊處則借用吊燈、墻壁等設計提升豐富感。為便利主人日常起居生活,設計師在主臥區域改造出貨一個迷你衛浴空間,以提升生活的私密感。
客廳:

灰色墻面搭配上以色塊組合而成的藝術掛畫,簡約而又不失現代時尚氛圍。大面積的灰色的配色淺褐色,給人以豐富的視覺效果。
餐廳:


就餐區域配色清新又柔和,木色與白色之間的組合營造空間溫馨靜謐感,墻面圓形藝術掛件簡約清新而又不失藝術感。
書房:

褐色與白色構成的書柜藝術感十足,搭配上簡單的圓形擺件,展示主人獨特審美與品位。
廚房:

大理石臺面賦予空間沉穩大氣感,半開放式設計讓廚房空間更顯寬敞大氣。
知精準報價 避裝修深坑
選擇您喜歡的風格
現代輕奢
現代美式
北歐
新中式
歐式
其他
知精準報價 避裝修深坑
選擇房屋面積區間
您的戶型
兩居室
三居室
四居室
五居室
六居室
知精準報價 避裝修深坑
稍等片刻,您的報價正在生中......
知精準報價 避裝修深坑
每日僅限前10名用戶