案例簡介:本案例的業主是一對即將進行婚姻殿堂的新房夫妻,同為教師的兩人對于中國傳統文化有著濃烈的興趣,因此他們希望能夠在家居空間中融入一些傳統的中式元素,打造出一所帶有古典韻味而又不失喜慶氛圍的品質住宅。設計師按照業主們的想法選擇了古韻氣息較為濃厚的中式輕奢裝修風,借助各種古香古色的元素來營造一種悠然的歷史氛圍感。
戶型解析:

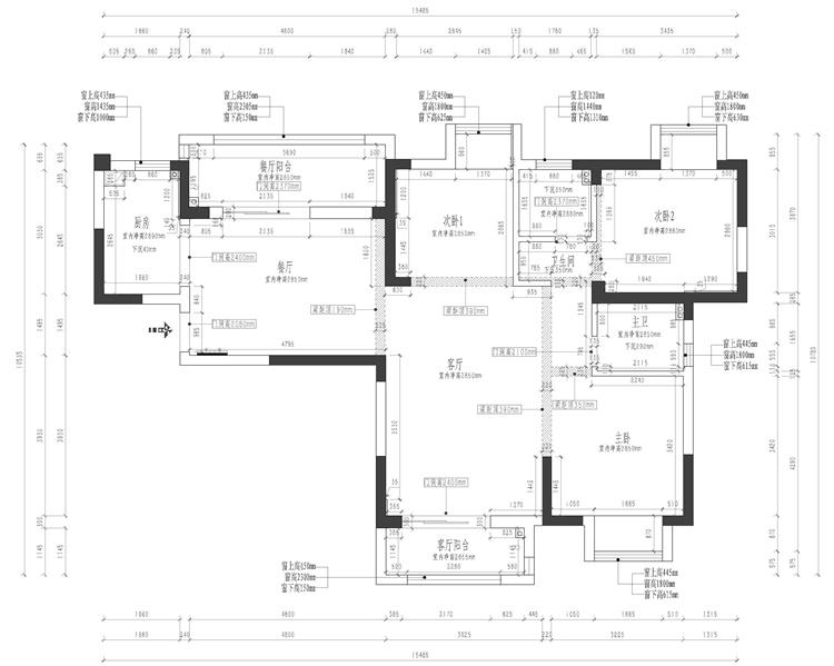
尚湖熙園這套三居室房屋的建筑面積約為127㎡,空間面積較為寬敞,除了帶有三個臥室空間之外,房屋帶有兩個陽臺,整體采光好且帶有視角觀賞優勢,因此設計師在進行空間規劃設計的時候充分利用了陽臺空間,借助陽臺將室外陽光與風景更好的引入室內,做到室內室外景色相融,在無形中提升整個家居空間的品質感與溫馨感。
客廳:

電視背景墻僅以一面簡單的淺褐色壁紙所構成,整體給人以清新自然感,而傳統中式造型的家具則為空間增添古韻之美。
餐廳:

帶有木材天然紋理的家具為就餐空間蒙上一抹自然的清新之美,而大面積落地窗則將陽光更好引入室內,提升就餐氛圍感。
| 姓名* | |
| 樓盤* | |
| 電話* | |
知精準報價 避裝修深坑
選擇您喜歡的風格
現代輕奢
現代美式
北歐
新中式
歐式
其他
知精準報價 避裝修深坑
選擇房屋面積區間
您的戶型
兩居室
三居室
四居室
五居室
六居室
知精準報價 避裝修深坑
稍等片刻,您的報價正在生中......
知精準報價 避裝修深坑
|
每日僅限前10名用戶