案例簡介:本案的業主是一對即將結婚的年輕夫妻,同為白領的他們不喜歡過度裝飾,希望設計師能夠使用一些盡可能簡約的元素裝飾空間,以保障耐看且易于打理。設計師按照業主的喜好與想法,選擇了簡約而又不失品質感的現代輕奢風進行裝飾設計,利用簡潔的元素與色彩強調空間的沉穩優雅氣息,而細節處的設計則提升空間的高級品質感。

戶型解析:
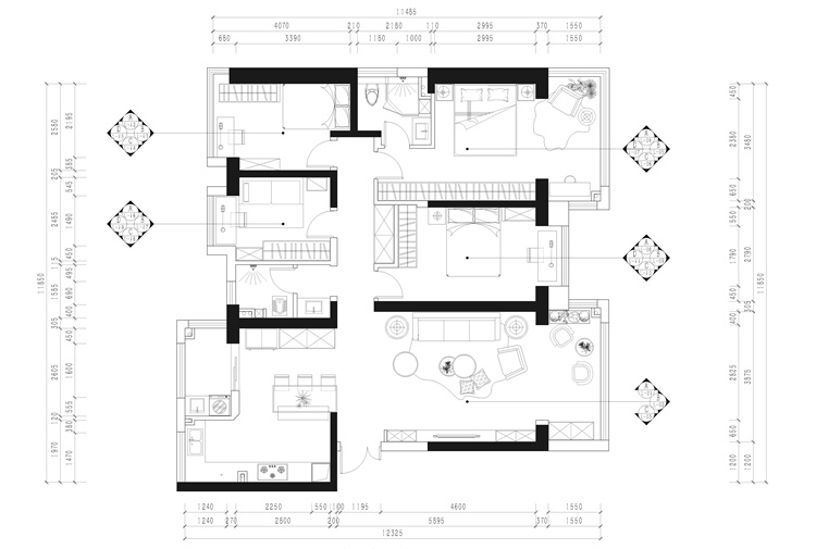
這套中建之星的三居室面積約為160㎡,整體的結構相對比較規整,設計師在進行規劃設計的時候巧妙的借助入戶作為軸線,將空間進行軟隔斷,將其中一部分打造成會客區域,另外一個區域改造成為就餐區域。而走廊盡頭則借助墻面裝飾畫進行點綴,避免走廊空間過于空蕩的同時還有效提升了空間的藝術感與品位感。
客廳:


嵌入式的電視機背景墻設計有效提升空間的現代時尚氣息,淺灰色的背景搭配上直線條則給人沉穩大氣的清新質感。
知精準報價 避裝修深坑
選擇您喜歡的風格
現代輕奢
現代美式
北歐
新中式
歐式
其他
知精準報價 避裝修深坑
選擇房屋面積區間
您的戶型
兩居室
三居室
四居室
五居室
六居室
知精準報價 避裝修深坑
稍等片刻,您的報價正在生中......
知精準報價 避裝修深坑
每日僅限前10名用戶