案例簡介:裝飾的靈魂是設計,設計的靈魂是文化。老年人對于自己的生活品質有很高的要求,在房屋裝修方面現代簡約的風格不僅僅很干凈,打掃衛生也是很方便的。與此同時布藝的一些家裝居中也具有很高的舒適度,由于風格很現代,在兒女來訪的時候也是喜歡這種風格,不會出現房屋風格審美方面的差異。
戶型解析:

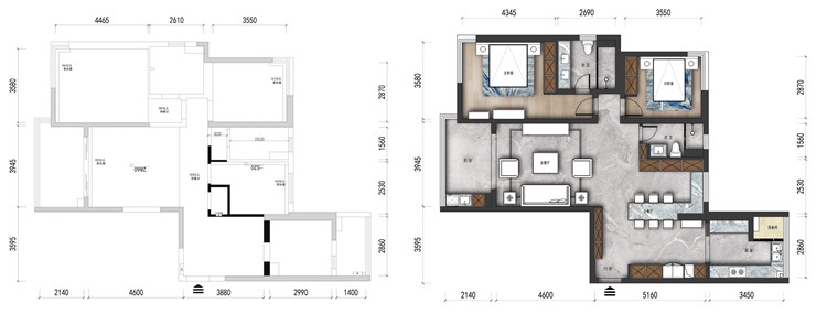
晉合世家三居室現代簡約風格住宅的面積是130平方米,三居室的空間設計不僅僅私密性好,可以滿足退休人群日常的居住。即便是節假日兒女帶著孩子來擺放也可以居住的很舒適,整體戶型中兩個衛生間的設計符合了居住生活中的便捷,廚房和餐廳的位置安排也符合居住要求。
客廳:

現代的布藝沙發和簡單的背景墻簡約時尚,卡通的小人使得客廳充滿了現代感。
餐廳:


合理的利用了兩個窗戶中間的位置,吧臺風格的桌子和整體裝修風格達到了匹配。餐桌兩邊都具有窗戶,用餐同時可以保持空氣流通。
臥室:

簡單的床鋪和現代的畫藝融合為一體,左右兩個床頭柜不僅僅不使得臥室擁擠,無論住在床鋪的哪一段生活起居都足夠方便。
知精準報價 避裝修深坑
選擇您喜歡的風格
現代輕奢
現代美式
北歐
新中式
歐式
其他
知精準報價 避裝修深坑
選擇房屋面積區間
您的戶型
兩居室
三居室
四居室
五居室
六居室
知精準報價 避裝修深坑
稍等片刻,您的報價正在生中......
知精準報價 避裝修深坑
每日僅限前10名用戶