案例簡介:裝飾的靈魂是設計,設計的靈魂是文化。業主是多子家庭,為了可以居住的很舒適便購買了三居室的房屋。在房屋的設計中采取了業務喜歡的輕奢風格,在每一個臥室設計中根據業主以及孩子的喜好來進行。寬敞的客廳作為一家人休閑娛樂的理想選擇,對于多子家庭而言,每一個空間都得到充分利用并且不擁擠。
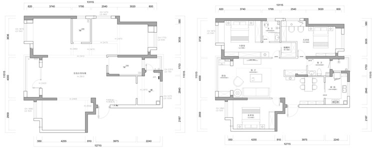
戶型解析:

金橋同源三居室輕奢風格住宅的面積是135平方米,戶型整體是很方正的,三個臥室大小符合居住的要求。戶型內部的客廳空間足夠大,廚房以及衛生間的分布都可以滿足多子家庭的需要。為了確保更好的享受陽光,陽臺的光線也是很充足的,戶型設計達到了四面通風的要求,居住中很舒適。
客廳:

白色為主色調搭配深色的家具,不僅僅看起來簡單,又可以感受到濃濃的輕奢風格。
餐廳:

餐廳和洗手臺連接,用餐之前洗手很方便。餐桌餐椅顏值高,餐椅使用舒適度很高。
臥室:

臥室和辦公融合為一體,家長孩子互相不會影響工作以及學習,工作完后便可以上床可以得到充足的休息。
知精準報價 避裝修深坑
選擇您喜歡的風格
現代輕奢
現代美式
北歐
新中式
歐式
其他
知精準報價 避裝修深坑
選擇房屋面積區間
您的戶型
兩居室
三居室
四居室
五居室
六居室
知精準報價 避裝修深坑
稍等片刻,您的報價正在生中......
知精準報價 避裝修深坑
每日僅限前10名用戶