案例介紹:縱使腳步匆忙,也難抵業主對生活的向往。本案用橫平豎直的線條來勾勒東方古風中神清氣朗、干脆利落的氣質,還通過家私配飾來描述東方人“知足常樂”、“民以食為天”的閑適自在的心態。
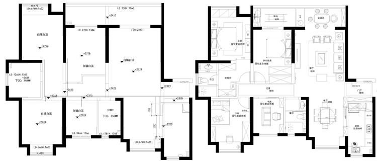
戶型解析

戶型整體來看較為方正,縱深布局,南北通透,原始戶型中,客餐空間墻體過多造成功能區分區明顯,為提升空間的空氣流通性,令客餐不顯局促,設計師調整了結構問題,另外,將主臥一側的衛生間規劃進主臥中,打造出套房空間,提升了主臥空間的私密感。
客廳

客廳空間利用溫潤的家具搭配水墨畫背景,展現出東方的禪意之美,傳達出舒適素雅的格調;沙發、茶幾、燈具、地毯等家具裝飾,既彰顯了中式的儒雅,又滿足現代生活的生活需求。
餐廳

餐廳與客廳之間無明顯隔斷,背景設計素雅別致,儲物柜采用嵌入式設計,餐桌椅造型充滿中式氣息,餐具、花卉等軟裝元素一如藝術展品,置身其中,即可慢享生活。
臥室


臥室的天花線條簡約雅致,提升了空間的立體感,兩個臥室背景墻都融入了中式畫裝飾,讓臥室空間多了一絲寧靜與優雅。
其他

走廊的設計主要在頂面和地面,吊頂與地磚都采用矩形線條勾勒,提升了過道的空間感,在燈光的渲染下,為整個空間帶來了中式格調。
知精準報價 避裝修深坑
選擇您喜歡的風格
現代輕奢
現代美式
北歐
新中式
歐式
其他
知精準報價 避裝修深坑
選擇房屋面積區間
您的戶型
兩居室
三居室
四居室
五居室
六居室
知精準報價 避裝修深坑
稍等片刻,您的報價正在生中......
知精準報價 避裝修深坑
每日僅限前10名用戶