案例介紹:本案為輕奢風格三居室,男主人為企業高管,女主人對顏色有著獨特的見解,曾是美術學院的她頗愛輕奢風格,溝通時二人提出了輕奢設計的需求,對空間的收納有一定需求,室內柜面選擇整裝定做,以呈現出高品質的視覺效果。
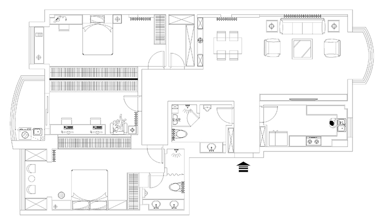
戶型解析

戶型圖比較方正,餐客采用橫廳設計,廳出陽臺,空間采光和通風都很不錯;臥室分布在南北兩側,中部為書房,書房內置獨立陽臺,生活辦公都十分舒適;兩個臥室的面積寬敞,朝南的臥室帶有衛生間,私密性更好。
客廳


客廳與餐廳相互結合,功能區之間并沒有明顯隔斷,設計師通過燈具和背景墻的造型來進行分區,讓整個空間變得更加和諧舒適;電視墻使用了大理石鋪貼,并在左側增設了收納柜,讓客廳空間變得更加富有時尚感和層次感。
餐廳

在白色的餐廳空間中搭配上暖色餐椅,用餐空間立刻有了一絲絲暖意;餐邊柜設計富有層次感,白色柜面選擇了燈帶進行點綴,藝術燈具和掛畫改善了內部呆板的環境,呈現出精致簡約感。
臥室

臥室空間以粉色和米色為主色調,背景墻融入一抹浪漫粉,空間立刻充滿了慵懶與暖意;灰白色的床鋪在空間中形成點綴,給人干凈整潔的視覺感受,梳妝柜見縫插針,層次分明,展現出空間的個性感。
知精準報價 避裝修深坑
選擇您喜歡的風格
現代輕奢
現代美式
北歐
新中式
歐式
其他
知精準報價 避裝修深坑
選擇房屋面積區間
您的戶型
兩居室
三居室
四居室
五居室
六居室
知精準報價 避裝修深坑
稍等片刻,您的報價正在生中......
知精準報價 避裝修深坑
每日僅限前10名用戶