小區:城投聯投江南岸
戶型:110㎡漫江月;140㎡楚江開;140㎡云棲處;140㎡千山外;170㎡平野闊;235㎡大江流

城投聯投江南岸地處新二環濱江示范段,具備江景資源、交通、配套、規模等多重優勢,集住宅、學校、酒店、商業等多樣業態,外享60萬方江灘公園,一線臨江,大美武漢盡收眼底!
為了給城投聯投江南岸的業主帶來更好的生活體驗,澳華裝飾的設計師全面解析建面110-235㎡的戶型方案。從居住者出發,從場景入手,平衡視覺效果與居住功能,擴展生活秩序!
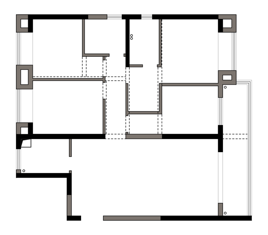
110㎡漫江月

△原始結構圖
戶型優點
√ 采光通風非常好。
√ 戶型功能區域劃分清晰。
√ 擁有超級觀景大陽臺。
戶型缺點
× 生活陽臺功能不清晰。
× 廚房和餐廳空間較小。
× 大框架剪力墻結構固定,只能做小調整。
方案
舒適三房,滿足多人口家庭

思路解析
1 客廳與陽臺聯通,增大會客區域,提升大氣視覺。
2 開放式廚房設計,解決餐廚空間較小的問題。
3 主衛納入主臥,與家人互不干擾,提升生活質量。
4 保留三房,滿足多人口居住。
效果圖展示

140㎡楚江開

△原始結構圖
戶型優點
√ 戶型整體采光、通風都不錯。
√ 每個單獨空間相對比較方正。
戶型缺點
× 臥室整體面積偏小,缺少儲物空間。
× 主衛面積偏大,會造成一定的空間浪費。
方案
舒適三房,滿足多人口家庭

思路解析
1 保留3個房間的設計布局,滿足不同家庭成員的需求,留有一個房間做成多功能室或書房。
2 過道部分增加一組儲物柜,緩解狹長過道的呆板,增加層次感。
3 保留長陽臺的布局,方便區分生活和休閑的不同形式的需求。
效果圖展示


140㎡千山外

△原始結構圖
戶型優點
√ 戶型較方正,功能區域劃分清晰。
√ 有一個開闊明亮的大陽臺。
戶型缺點
× 次臥面積較小,影響居住體驗。
× 廚房空間較小,難以滿足當代人對于廚房電器的需求。
方案一
實用四房+開放式廚房

思路解析
1 客餐廳陽臺一體化設計,提升視覺空間,增加了互動場所。
2 開放式廚房設計,解決了廚房面積較小,光線較暗的問題。
3 主衛納入主臥,形成私密、便捷的舒適套臥。
4 保留三間次臥,滿足多人口家庭;增設儲物間,滿足收納。
效果圖展示


方案二
兩間臥室聯通,形成舒適套臥

思路解析
1 客餐廳陽臺一體化設計,提升視覺空間,增加了互動場所。
2 開放式廚房設計,解決了廚房面積較小,光線較暗的問題。
3 兩間次臥打通,形成一個衣帽間+主臥+主衛的舒適套臥,打造高品質私人生活。
效果圖展示



140㎡云棲處

△原始結構圖
戶型優點
√ 采光通風非常好。
√ 戶型功能區域劃分清晰。
√ 擁有觀景大陽臺。
戶型缺點
× 廚房空間較小,難以滿足當代人對于廚房電器的需求。
× 臥室尺寸不大。
方案一
舒適套臥,呵護高品質生活

思路解析
1 打通陽臺,使視野更開闊,增加空間的通透性。
2 優化儲物空間,大的鞋柜與餐邊柜以及衣柜大大滿足日常儲物所需。
3 長餐桌滿足多口之家用餐需求。
4 做斜主衛墻體,保證主臥進出的開闊性。
效果圖展示


方案二
舒適四房,滿足多人口家庭

思路解析
1 打通陽臺,使視野更開闊,增加空間的通透性。
2 優化次臥室的使用空間,利用入墻柜增加收納。
3 靠邊放餐桌,保證動線的流暢度。
效果圖展示


170㎡平野闊

△原始結構圖
戶型優點
√ 客餐廳面積較大,活動舒展。
√ 擁有開闊的觀景大陽臺。
√ 房間多,適宜多人口家庭。
戶型缺點
× 餐廳部分面積較小,采光受限。
方案一
三房+三衛,呵護品質生活

思路解析
1 入戶靠墻做一排收納柜,增加收納。
2 客餐廳陽臺都打通,空間開闊明亮。
3 餐廳借用書房面積,擴大餐廳使用面積,提供更大的互動空間。
4 書房納入主臥,形成了一個集衣帽間、浴室、書房和睡眠區為一體的奢華套臥。
5 三間衛浴,家人使用可以互不干擾。
效果圖展示


方案二
舒適三房+多功能空間

思路解析
1 進門做玄關端景和收納柜,增加入戶儀式感。
2 玄關旁邊還專門做了一個小儲物間,增加收納。
3 餐廳借用書房面積,擴大餐廳使用面積,提供更大的互動空間。
4 書房納入主臥,形成了一個集衣帽間、浴室、書房和睡眠區為一體的奢華套臥。
5 三間衛浴,家人使用可以互不干擾。
效果圖展示


235㎡大江流

△原始結構圖
戶型優點
√ 采光通風非常好。
√ 戶型功能區域劃分清晰。
√ 空間利用程度高。
戶型缺點
× 生活陽臺不清晰。
方案
去客廳化設計+開放式書房

思路解析
1 客廳、餐廳采用一體化設計,增大視覺空間,增加了互動性。
2 沙發不靠墻,利用沙發做隔斷做開放式書房,利用墻面打造整墻書柜。
3 各個空間都增設了儲物空間,強化了收納的功能。
效果圖展示


知精準報價 避裝修深坑
選擇您喜歡的風格
現代輕奢
現代美式
北歐
新中式
歐式
其他
知精準報價 避裝修深坑
選擇房屋面積區間
您的戶型
兩居室
三居室
四居室
五居室
六居室
知精準報價 避裝修深坑
稍等片刻,您的報價正在生中......
知精準報價 避裝修深坑
每日僅限前10名用戶