一年之計在于春。三月,橡樹灣內一派生機盎然。當同小區業主為裝修而忙碌時,本期樣板房業主黃女士已順利完工,收獲理想新家。
正午時分,樣板房拍攝小組如約上門,細心熱情的女主人下樓迎接。正式開拍才知曉,整套房子從設計、施工,到完工入住,均由女主人一手包辦。
先生在外地跟進工程項目,女兒遠赴溫哥華求學,裝修的大任自然落在了黃女士身上。在醫院上班的她雖獨攬裝修大權,卻認為家不是行使專斷權利的場所,是賦予愛與溫暖的港灣。
?
「設計師名片」

?
「業主信息」

----------------------------------------------------------------------------------------------------------------
「項目說明」
房屋位置:華潤橡樹灣
房屋戶型:四室兩廳,總面積160㎡
整裝造價:50萬元(定制整裝)
完工時間:2015年9月
?
在家居設計風格上,黃女士并未有過多糾結。四室兩廳的戶型,有充足的空間就要裝得其所,裝出家人滿意、家居便利的效果。簡單征詢家人的意愿后,黃女士果斷采納了設計師汪海的建議:以歐式硬裝為主,美式軟裝為輔的多元設計方案。

?
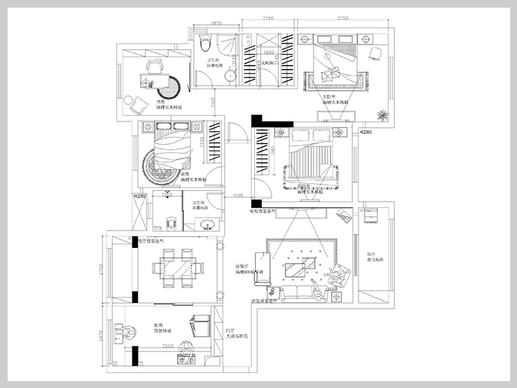
▲平面布置圖

?
▲客廳效果圖

?
▲餐廳效果圖

?
▲整體亮點
●?「澳華整裝樣板房」業主?黃女士?說
裝修前我認真分析了一家人的喜好,歐式是我喜歡的雅致、細膩,美式是先生所追求的懷舊與厚重。再加上女兒從小接受國外的開放式教育,她更看重的是住的舒適、自在、隨意的環境。所以,能夠包容一家人喜好的家才讓人覺得充實、踏實。

?
▲客廳與吊頂
●?「澳華整裝樣板房」業主?黃女士?說
最滿意的地方是吊頂,就連物業巡查工地時都對我們家吊頂贊不絕口。實際上我不懂造型工藝,就是覺得要與整體風格合拍,還有一個硬性要求是我們一家都是高個子,吊頂不能太矮。所以,汪工設計的雙層石膏線與內嵌式燈帶效果讓我很驚喜,有層次、不壓抑,還非常氣派呢!

?

?
▲玄關與地磚拼花
●?「澳華整裝樣板房」業主?黃女士?說
玄關對客人講的是門面,對自己就多了一項實用功能。比如,早出晚歸照明儲物,冬天烘鞋充電,這些小細節汪工都考慮到了,頂墻的柜體實現了分類收納;開放儲物格預留插座面板,方便臨時用電。

?
▲餐廳與酒柜設計
●?「澳華整裝樣板房」業主?黃女士?說
先生和女兒長期不在家,難得坐在一起吃頓飯,休息時我都會約親朋好友來家里聚聚。所以,餐廳一定要足夠開闊、溫馨。汪工特意選了大理石材和原木家具來表現開放、熱情的氛圍。原本面積不大的餐廳硬性塞一個酒柜太堵了,但是改到陽臺兩側打柜子,既節省了空間,又不影響采光。

?

?
▲廚房與整體櫥柜
●?「澳華整裝樣板房」業主?黃女士?說
一個人做飯是非常孤獨的事情,尤其是狹窄、光線又暗的地方,就更沒動力下廚了。汪工建議把生活陽臺改成廚房操作臺,廚房光線好了、面積也擴寬了,以后一家人下廚都不會覺得擁擠。


?
▲主臥與衣帽間
●?「澳華整裝樣板房」業主?黃女士?說
因為長期在醫院工作的原因,我喜歡清靜,也非常注重睡眠質量。所以,汪工給出的設計是硬裝盡量簡單、軟裝色彩淺淡,這樣的睡眠環境正好符合了醫學上講究的舒緩身心、快速入睡的效果。

?

?
▲客臥

?
▲女兒房
●?「澳華整裝樣板房」業主?黃女士?說
顏色太深,不符合女兒年齡層;顏色太淺,又顯得冷清。女兒一年里待在家的時間屈指可數,自然要讓她住的舒服,也順便拉進母女感情。所以,女兒房布置就是想讓她一回家就能覺得親切、溫暖。

?
▲書房
●?「澳華整裝樣板房」業主?黃女士?說
先生是做工程設計的,休假在家也需要有獨立的工作空間,加上他本身就喜歡沉穩、飽滿的美式家具,?書房簡直是為他量身定做一樣。當然,我休息時也可以待在這里曬曬太陽,看看書,享受下午茶時光。

?
▲衛生間與干濕分區

?
▲衛生間與干濕分區
●?「澳華整裝樣板房」業主?黃女士?說
衛生間水漬、濕氣是最讓人頭疼的問題,武漢天氣變化太快,衛生間通風排水跟不上,家里總是濕漉漉的。所以,汪工在主次衛生間做了干濕分區,設計很人性化、擋水條和方形地漏也非常實用。

?
▲生活陽臺
●?「澳華整裝樣板房」業主?黃女士?說
在陽臺上洗曬衣物,簡單方便,衣服即洗即曬即收,省了時間和精力;玄關柜不夠裝,陽臺柜也可以幫忙分擔。

?
▲軟裝亮點
----------------------------------------------------------------------------------------------------------------------
「蘑菇菌說」
好的設計與裝修,無所謂風格與面積,重在以人為本。就如同本案業主黃女士的觀點,家居就是裝得其所、住的放心。
撥打13397130005約看更多橡樹灣在建工地,或者在線預約整裝設計師。澳華品質整裝,只為讓更多業主放心入住!