案例簡介:本案例的業主是一對在大城市打拼多年的白領夫妻,兩人對于房屋有著自己的理解,希望設計師能夠幫助自己打造出一個清新優雅而又不失現代時尚氣息的住宅。而根據業主的生活習慣、審美等,在裝修風格上選擇了自由感較強的美式風,而材料的選擇上則更偏向于質感與色彩兼具的,以達到在無形之中裝飾空間的作用。
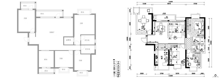
戶型解析:

舒適的四房兩衛,160平米空間充足,廚房陽臺擴充到廚房,形成一個非常敞亮的廚房,保留客廳陽臺,各區域功能分明。衣帽間拆除,擴充廚房與次臥面積,讓其更寬敞。因是一家三口居住,僅保留兩間臥室,其它次臥均分別改為多功能房與書房。
客廳:

設計感十足的藝術大理石背景墻搭配上簡約木質儲物柜,清冷與溫潤之間的碰撞為空間注入了一抹結構層次美。
廚房:

大面積的推拉窗戶能夠確保廚房油煙盡快釋放,簡約的黑白配色耐看而又不失時尚氣息。
臥室:

帶有紋理設計的木板貼紙溫潤而又不失自然感,搭配上柔軟的床具,強調舒適愜意感。
衛生間:

圓形鏡子搭配上鏤空木質背景墻,簡約而又不失禪意美。
知精準報價 避裝修深坑
選擇您喜歡的風格
現代輕奢
現代美式
北歐
新中式
歐式
其他
知精準報價 避裝修深坑
選擇房屋面積區間
您的戶型
兩居室
三居室
四居室
五居室
六居室
知精準報價 避裝修深坑
稍等片刻,您的報價正在生中......
知精準報價 避裝修深坑
每日僅限前10名用戶