案例簡介:本案例的業主對于生活品質有著極高的要求,想要在自己的房屋中體現出低調而又輕奢的高級氣息。而由于陽臺區域面積較大,因此業主希望能夠將該區域空間進行合理的利用,能夠滿足自己與家人、朋友的休憩使用需求?;诖?,設計師選擇了相對比較穩妥的輕奢風裝飾整體空間,同時借助材料本身的質感裝飾房屋。
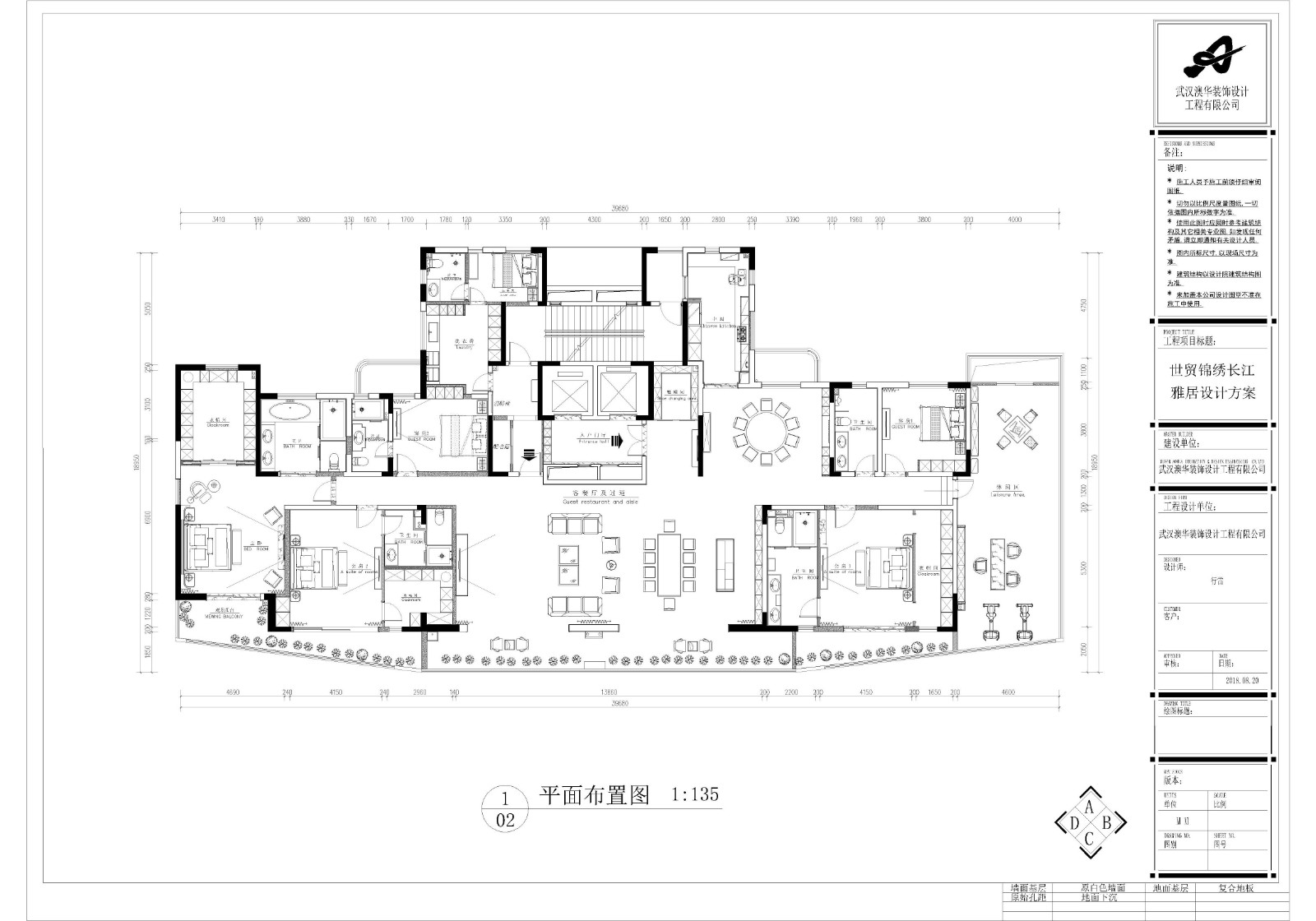
戶型解析:

漢陽世茂天胤這套550㎡的房屋面積較為寬敞,雖然整體結構四四方方,但是空間中存在著不少的零碎角落,因此需要設計師將這些空間進行合理的分配使用,在提升空間利用率的同時確保整個家居空間能夠更好的為業主所服務。而就餐區域與入戶門廳的狹小角落,就根據需求設計成一個小小的鞋帽間,滿足業主一家人出入替換衣物及放置物件的需求。
客廳:




皮質與玻璃、木板等不同質感的材料讓客廳的結構感更為豐富。同色系的色彩搭配簡約而又不單調,有效提升空間質感。
餐廳:




對稱式的掛畫設計增添空間沉穩大氣氛圍,大理石餐桌簡約而又高貴,有效提升了就餐環境的氛圍與格調。
臥室:



大面積的落地玻璃窗讓陽光能夠“肆無忌憚”的進入休憩空間,凹顯式的吊燈設計搭配上鑲邊處理,簡單低調中又暗含著典雅貴氣美。
休閑區:




三面落地窗搭配上各類木質家具就構成了休閑區的軟裝,此外再“借入”室外景觀,簡單而又不失自然藝術感。
知精準報價 避裝修深坑
選擇您喜歡的風格
現代輕奢
現代美式
北歐
新中式
歐式
其他
知精準報價 避裝修深坑
選擇房屋面積區間
您的戶型
兩居室
三居室
四居室
五居室
六居室
知精準報價 避裝修深坑
稍等片刻,您的報價正在生中......
知精準報價 避裝修深坑
每日僅限前10名用戶