案例簡介:輕奢風軟裝幾乎不會出現各種造型華麗的元素,而是借助材料本身的質感進行裝飾點綴,在無形之中起到提升空間質感的作用,這種低調而又高級的軟裝風格是目前大多都市白領所偏愛的。而本案例的業主在借助材料本身質感的同時,融入色彩對比、對稱式等設計原理提升空間的藝術優雅氛圍。
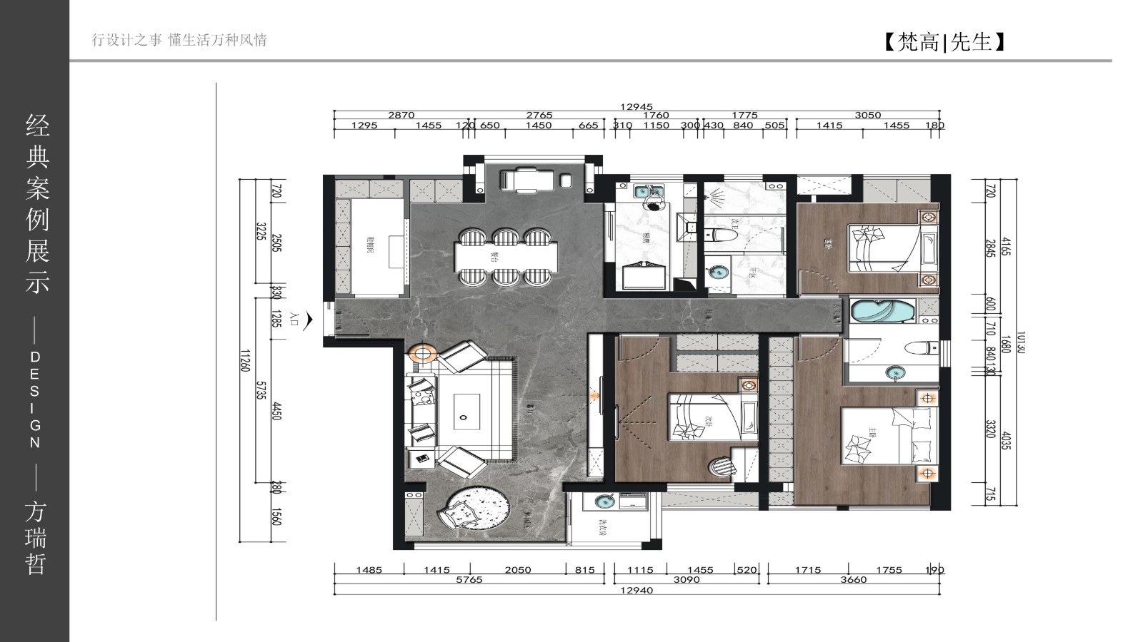
戶型解析:

三和劍橋城這套三居室的住宅占地面積為150㎡,房屋外形相對比較四方,不存在各種難以處理的犄角及細小角落,因此設計師只需根據業主及家人的需求進行功能劃分及軟裝設計即可。根據業主的生活習慣,設計師在主臥區域單獨隔離出一個衛浴空間,以滿足主人私密使用需求。
客廳:



大面積的淺褐色瓷磚強調沉穩氛圍,對稱式的背景墻設計則為空間增添優雅格調。
餐廳:


白色大理石餐桌搭配上不同色彩的曲線型椅子,簡約而又不失跳躍律動美。
衛生間:

衛生間區域使用大面積褐色瓷磚進行裝飾鋪設,同時搭配以長條形收納臺面,突出空間清新質感的同時有效提升空間利用率。
知精準報價 避裝修深坑
選擇您喜歡的風格
現代輕奢
現代美式
北歐
新中式
歐式
其他
知精準報價 避裝修深坑
選擇房屋面積區間
您的戶型
兩居室
三居室
四居室
五居室
六居室
知精準報價 避裝修深坑
稍等片刻,您的報價正在生中......
知精準報價 避裝修深坑
每日僅限前10名用戶