案例簡介:現代低調奢華風格這種氣質多數通過一些精致軟裝和材質的質感來體現。營造出舒適、通透、合理的使用空間,讓整個空間透著一種清澈、靜怡、寧和、雅致之美?,F代輕奢風格強調簡單中有奢華感受,看似簡潔素凈的外表之下融入時尚輕奢的特質,展示著精致優雅的生活態度,不需要走在前端,更不需要炫耀夸贊,低調,舒適,卻無損高貴與雅致,盡情享受生活的美好。
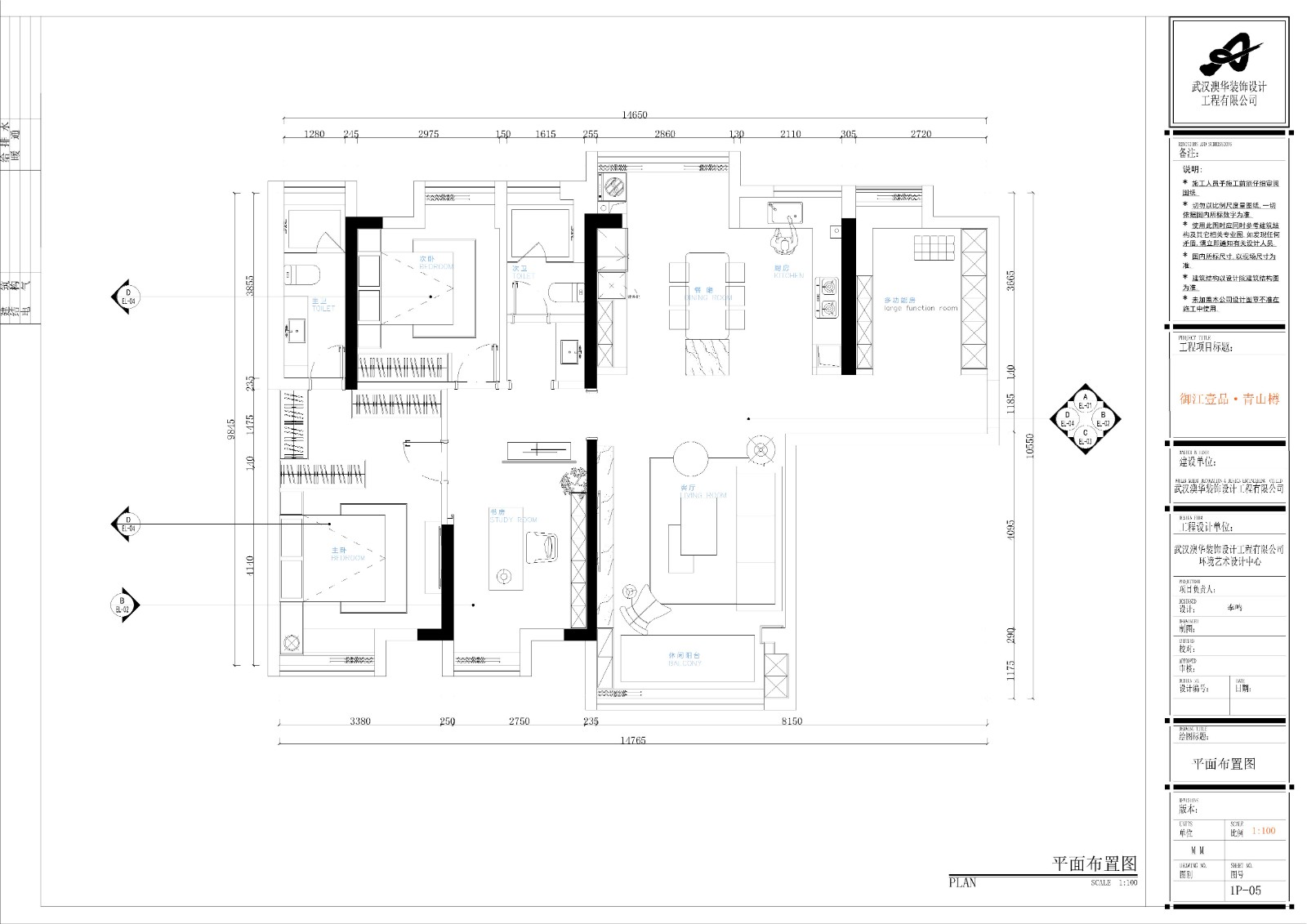
戶型解析:




御江壹品·青山樽這套三居室的住宅建筑面積約為154㎡,原有的戶型結構已經進行了基礎的功能分區,而由于入戶走廊盡頭處的區域面積相對比較寬敞,因此設計師將該區域納入納入主臥空間打造成一個迷你的的衣帽間,同時將旁邊小空間的墻面打通設計為主臥區域的洗浴空間,有效提升空間利用率及主人的生活品質感。
客廳:

嵌入式背景墻設計讓電視機“隱身”在墻面處,有效提升了空間的現代時尚氛圍。
餐廳:

大面積的淺色大理石材質奠定潔凈舒適的氛圍感,搭配以綠色植株,為空間引入自然清新風采。
書房:


書房借助木質柵欄進行隔斷,有效提升空間藝術氛圍感的同時增添了區域通透感。
衣帽間:

簡單的白色儲物柜搭配上灰色地毯,簡約清新,強調實用性。
主臥:

素色印花墻面清新又耐看,搭配上灰色地毯,增添空間結構感。
知精準報價 避裝修深坑
選擇您喜歡的風格
現代輕奢
現代美式
北歐
新中式
歐式
其他
知精準報價 避裝修深坑
選擇房屋面積區間
您的戶型
兩居室
三居室
四居室
五居室
六居室
知精準報價 避裝修深坑
稍等片刻,您的報價正在生中......
知精準報價 避裝修深坑
每日僅限前10名用戶